Codice
902
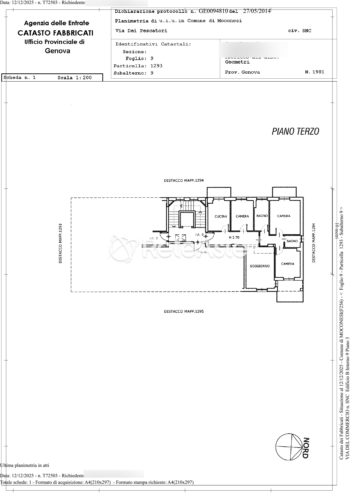
Appartamento
Appartamento
Piazza dei Pescatori 16047 Moconesi (GE)
-
96Superficie catastale
-
100Superficie commerciale
-
3Piano
-
5Locali
-
2Bagni
Appartamento di nuova costruzione, certificato in classe energetica A3, con garage di pertinenza al piano seminterrato. L’immobile è posto al terzo piano di una palazzina moderna servita da ascensore, e si compone di soggiorno, cucina, tre camere da letto, due bagni, per 100 mq oltre terrazzi.
La qualità costruttiva dell’edificio si vede nelle murature esterne ad alte prestazioni e nei serramenti in alluminio a taglio termico con doppi vetri acustici e gas argon, soluzioni che assicurano un elevato comfort termo-acustico. Il sistema di riscaldamento è centralizzato, con gestione tramite crono-termostati e contabilizzazione individuale dei consumi ed un impianto solare termico come supporto alle caldaie per la produzione di acqua calda sanitaria. Internamente ci sono pavimenti in ceramica di qualità, mentre il bagno è rifinito con rivestimenti moderni, sanitari sospesi e cabina doccia in cristallo. All'esterno, le finiture includono persiane alla genovese in alluminio e davanzali in elegante marmo bianco Carrara.
L’appartamento è inserito in un contesto residenziale tranquillo, tipico dell’entroterra ligure.
La posizione acquisisce una particolare rilevanza strategica in vista della realizzazione del Tunnel della Val Fontanabuona, infrastruttura attesa da lungo tempo e destinata a incidere in modo significativo sulla mobilità e il prestigio dell’area. Secondo gli aggiornamenti più recenti, l’avvio dei cantieri è previsto entro febbraio 2026: l’opera permetterà di collegare Moconesi a Rapallo in circa 10 minuti, creando una nuova e diretta connessione con la costa e con il Golfo del Tigullio. Tale intervento è destinato a favorire una progressiva valorizzazione immobiliare, anche in considerazione della limitata offerta abitativa e delle quotazioni storicamente elevate dell’area costiera.
La qualità costruttiva dell’edificio si vede nelle murature esterne ad alte prestazioni e nei serramenti in alluminio a taglio termico con doppi vetri acustici e gas argon, soluzioni che assicurano un elevato comfort termo-acustico. Il sistema di riscaldamento è centralizzato, con gestione tramite crono-termostati e contabilizzazione individuale dei consumi ed un impianto solare termico come supporto alle caldaie per la produzione di acqua calda sanitaria. Internamente ci sono pavimenti in ceramica di qualità, mentre il bagno è rifinito con rivestimenti moderni, sanitari sospesi e cabina doccia in cristallo. All'esterno, le finiture includono persiane alla genovese in alluminio e davanzali in elegante marmo bianco Carrara.
L’appartamento è inserito in un contesto residenziale tranquillo, tipico dell’entroterra ligure.
La posizione acquisisce una particolare rilevanza strategica in vista della realizzazione del Tunnel della Val Fontanabuona, infrastruttura attesa da lungo tempo e destinata a incidere in modo significativo sulla mobilità e il prestigio dell’area. Secondo gli aggiornamenti più recenti, l’avvio dei cantieri è previsto entro febbraio 2026: l’opera permetterà di collegare Moconesi a Rapallo in circa 10 minuti, creando una nuova e diretta connessione con la costa e con il Golfo del Tigullio. Tale intervento è destinato a favorire una progressiva valorizzazione immobiliare, anche in considerazione della limitata offerta abitativa e delle quotazioni storicamente elevate dell’area costiera.
Newly built apartment, certified in energy class A3, with a garage on the basement level. The property is located on the third floor of a modern building served by an elevator, and consists of a living room, kitchen, three bedrooms, two bathrooms, totaling 100 sqm plus terraces.
The building's construction quality is evidenced by the high-performance external walls and the thermal cut aluminum windows with double glazed soundproof glass and argon gas, solutions that ensure high thermal and acoustic comfort. The heating system is centralized and powered by solar panels, managed through chrono-thermostats and individual consumption metering. Internally, there are quality ceramic floors, while the bathroom is finished with modern coverings, wall-hung sanitary ware, and a glass shower cabin. Externally, the finishes include aluminum Genoese blinds and elegant Carrara white marble windowsills.
The apartment is located in a quiet residential area typical of the Ligurian hinterland.
The location gains particular strategic relevance in light of the construction of the Val Fontanabuona Tunnel, an infrastructure long-awaited and expected to significantly impact mobility and the prestige of the area. According to the most recent updates, construction is expected to start by February 2026: the project will connect Moconesi to Rapallo in about 10 minutes, creating a new and direct connection to the coast and the Gulf of Tigullio. This intervention is expected to promote a progressive real estate valorization, also considering the limited housing supply and historically high prices in the coastal area.
The building's construction quality is evidenced by the high-performance external walls and the thermal cut aluminum windows with double glazed soundproof glass and argon gas, solutions that ensure high thermal and acoustic comfort. The heating system is centralized and powered by solar panels, managed through chrono-thermostats and individual consumption metering. Internally, there are quality ceramic floors, while the bathroom is finished with modern coverings, wall-hung sanitary ware, and a glass shower cabin. Externally, the finishes include aluminum Genoese blinds and elegant Carrara white marble windowsills.
The apartment is located in a quiet residential area typical of the Ligurian hinterland.
The location gains particular strategic relevance in light of the construction of the Val Fontanabuona Tunnel, an infrastructure long-awaited and expected to significantly impact mobility and the prestige of the area. According to the most recent updates, construction is expected to start by February 2026: the project will connect Moconesi to Rapallo in about 10 minutes, creating a new and direct connection to the coast and the Gulf of Tigullio. This intervention is expected to promote a progressive real estate valorization, also considering the limited housing supply and historically high prices in the coastal area.
Appartement de nouvelle construction, certifié en classe énergétique A3, avec un garage appartenant au sous-sol. La propriété est située au troisième étage d'un immeuble moderne desservi par un ascenseur et se compose d'un salon, d'une cuisine, de trois chambres, de deux salles de bains, pour un total de 100 m² plus terrasses.
La qualité de construction de l'immeuble se voit dans les murs extérieurs haute performance et dans les fenêtres en aluminium à rupture de pont thermique avec double vitrage acoustique et gaz argon, des solutions assurant un confort thermique et acoustique élevé. Le système de chauffage est centralisé et alimenté par des panneaux solaires, avec une gestion via des thermostats programmables et une comptabilisation individuelle des consommations. À l'intérieur, il y a des carreaux de céramique de qualité, tandis que la salle de bains est finie avec des revêtements modernes, des sanitaires suspendus et une cabine de douche en verre. À l'extérieur, les finitions comprennent des persiennes à l'italienne en aluminium et des appuis de fenêtre en élégant marbre blanc de Carrare.
L'appartement est situé dans un quartier résidentiel calme, typique de l'arrière-pays ligure.
L'emplacement acquiert une importance stratégique particulière en vue de la réalisation du Tunnel de la Val Fontanabuona, une infrastructure attendue depuis longtemps et destinée à avoir un impact significatif sur la mobilité et le prestige de la région. Selon les dernières mises à jour, le début des travaux est prévu pour février 2026 : l'ouvrage permettra de relier Moconesi à Rapallo en environ 10 minutes, créant une nouvelle connexion directe avec la côte et le Golfe de Tigullio. Cette intervention est destinée à favoriser une valorisation immobilière progressive, compte tenu également de l'offre limitée de logements et des prix historiquement élevés de la région côtière.
La qualité de construction de l'immeuble se voit dans les murs extérieurs haute performance et dans les fenêtres en aluminium à rupture de pont thermique avec double vitrage acoustique et gaz argon, des solutions assurant un confort thermique et acoustique élevé. Le système de chauffage est centralisé et alimenté par des panneaux solaires, avec une gestion via des thermostats programmables et une comptabilisation individuelle des consommations. À l'intérieur, il y a des carreaux de céramique de qualité, tandis que la salle de bains est finie avec des revêtements modernes, des sanitaires suspendus et une cabine de douche en verre. À l'extérieur, les finitions comprennent des persiennes à l'italienne en aluminium et des appuis de fenêtre en élégant marbre blanc de Carrare.
L'appartement est situé dans un quartier résidentiel calme, typique de l'arrière-pays ligure.
L'emplacement acquiert une importance stratégique particulière en vue de la réalisation du Tunnel de la Val Fontanabuona, une infrastructure attendue depuis longtemps et destinée à avoir un impact significatif sur la mobilité et le prestige de la région. Selon les dernières mises à jour, le début des travaux est prévu pour février 2026 : l'ouvrage permettra de relier Moconesi à Rapallo en environ 10 minutes, créant une nouvelle connexion directe avec la côte et le Golfe de Tigullio. Cette intervention est destinée à favoriser une valorisation immobilière progressive, compte tenu également de l'offre limitée de logements et des prix historiquement élevés de la région côtière.
Neubauwohnung, zertifiziert in Energieklasse A3, mit eigener Garage im Untergeschoss. Die Immobilie befindet sich im dritten Stock eines modernen Gebäudes mit Aufzug und besteht aus einem Wohnzimmer, einer Küche, drei Schlafzimmern, zwei Bädern, insgesamt 100 qm plus Terrassen.
Die Bauqualität des Gebäudes zeigt sich in den hochleistungsfähigen Außenmauern und den Aluminium-Fenstern mit thermischer Trennung, Schallschutz- und Argongasfüllung, Lösungen, die einen hohen thermischen und akustischen Komfort garantieren. Das Heizsystem ist zentralisiert und wird von Sonnenkollektoren versorgt, gesteuert durch Chronothermostate und individuelle Verbrauchszähler. Im Inneren gibt es qualitativ hochwertige Keramikböden, während das Badezimmer mit modernen Verkleidungen, schwebenden Sanitäranlagen und einer Duschkabine aus Glas ausgestattet ist. Die Außenverkleidung umfasst Aluminium-Genueserläden und elegante Fensterbänke aus weißem Carrara-Marmor.
Die Wohnung liegt in einer ruhigen Wohngegend, typisch für das ligurische Hinterland.
Die Lage gewinnt an strategischer Bedeutung im Hinblick auf die Fertigstellung des Tunnels Val Fontanabuona, einer seit langem erwarteten Infrastruktur, die die Mobilität und das Ansehen der Region erheblich beeinflussen wird. Gemäß den aktuellsten Informationen soll der Baubeginn bis Februar 2026 erfolgen: Das Werk wird Moconesi mit Rapallo in etwa 10 Minuten verbinden und eine neue direkte Verbindung zur Küste und dem Golf von Tigullio schaffen. Diese Maßnahme wird eine zunehmende Immobilienentwicklung begünstigen, auch aufgrund des begrenzten Wohnraumangebots und der historisch hohen Preise in der Küstenregion.
Die Bauqualität des Gebäudes zeigt sich in den hochleistungsfähigen Außenmauern und den Aluminium-Fenstern mit thermischer Trennung, Schallschutz- und Argongasfüllung, Lösungen, die einen hohen thermischen und akustischen Komfort garantieren. Das Heizsystem ist zentralisiert und wird von Sonnenkollektoren versorgt, gesteuert durch Chronothermostate und individuelle Verbrauchszähler. Im Inneren gibt es qualitativ hochwertige Keramikböden, während das Badezimmer mit modernen Verkleidungen, schwebenden Sanitäranlagen und einer Duschkabine aus Glas ausgestattet ist. Die Außenverkleidung umfasst Aluminium-Genueserläden und elegante Fensterbänke aus weißem Carrara-Marmor.
Die Wohnung liegt in einer ruhigen Wohngegend, typisch für das ligurische Hinterland.
Die Lage gewinnt an strategischer Bedeutung im Hinblick auf die Fertigstellung des Tunnels Val Fontanabuona, einer seit langem erwarteten Infrastruktur, die die Mobilität und das Ansehen der Region erheblich beeinflussen wird. Gemäß den aktuellsten Informationen soll der Baubeginn bis Februar 2026 erfolgen: Das Werk wird Moconesi mit Rapallo in etwa 10 Minuten verbinden und eine neue direkte Verbindung zur Küste und dem Golf von Tigullio schaffen. Diese Maßnahme wird eine zunehmende Immobilienentwicklung begünstigen, auch aufgrund des begrenzten Wohnraumangebots und der historisch hohen Preise in der Küstenregion.
新建公寓,能源等级为A3,带有地下车库。该物业位于现代建筑的三楼,设有电梯,包括客厅、厨房、三间卧室、两间浴室,总面积100平方米,还有露台。 建筑的建造质量可以从高性能的外墙和带有隔音双层玻璃和氩气的热断桥铝窗户中看出,这些解决方案确保了高度的隔热和隔音舒适性。供暖系统是集中式的,由太阳能板提供供暖,并通过定时器恒温器进行管理,以及对消耗进行个别计量。室内铺有高质量的陶瓷地板,浴室配有现代装饰、悬挂式卫生洁具和玻璃淋浴间。室外装饰包括隔音铝制韦翁瓦百叶窗和优雅的座台用白色卡拉拉大理石制成。 公寓位于利古里亚内陆典型的安静住宅区。 这一位置在意大利Val Fontanabuona隧道的建设中显得特别重要,这项被期待已久的基础设施预计将对该地区的交通和声誉产生显著影响。根据最新消息,工地计划将于2026年2月启动:这项工程将使Moconesi和拉帕洛之间的行程时间缩短至大约10分钟,从而为连接沿海和提古利奥湾创造新的直接通道。该举措有望促进房地产的逐渐增值,尤其考虑到沿海地区住房供应有限并且历史上价格高企。
Новая квартира, сертифицированная по энергетическому классу A3, с гаражом на подземном этаже. Недвижимость находится на третьем этаже современного дома с лифтом и состоит из гостиной, кухни, трех спален, двух ванных комнат, 100 квадратных метров плюс террасы. Качество строительства видно в высокопрочных наружных стенах и в термически разрезаемых алюминиевых окнах с двойным звукоизоляционным остеклением и аргоновым газом, обеспечивающие высокий тепло- и звукоизоляции. Система отопления централизованная, питается солнечными панелями, управляемая кроно-термостатами с индивидуальным учетом расходов. Внутри квартиры качественные керамические полы, в ванной комнате современные отделочные материалы, подвесной сантехники и душевая кабина из стекла. Снаружи отделка включает алюминиевые ставни на створках и подоконники из элегантного белого каррарского мрамора. Квартира расположена в тихом жилом районе, типичном для Лигурийского интерьера. Расположение приобретает особую стратегическую важность в свете строительства Туннеля Val Fontanabuona, долгожданной инфраструктуры, которая должна значительно повлиять на мобильность и престиж района. Согласно последним обновлениям, начало строительства планируется к февралю 2026 года: проект позволит соединить Моконези с Рапалло примерно за 10 минут, создав новое прямое соединение с побережьем и с Заливом Тигульо. Эта инициатива должна способствовать постепенному увеличению стоимости недвижимости, учитывая ограниченное предложение жилья и исторически высокие цены на побережье.
- Data annuncio
- 15/12/2025
- Tipologia
- Appartamento
- Diritto
- Piena proprietà
- Anno di costruzione
- Dal 2010 al 2019
- Quota
- 1/1
- Condizioni dell’immobile
- Nuova costruzione
- Stato occupazione
- Libero
- Camere da letto
- 3
- Balcone/Terrazzo
- Si
- Ascensore
- Si
- Garage
- 20 mq
- Riscaldamento
- Centralizzato
- Classificazione energetica
- A3
- Indice prestazione energetica
- 23,17 kWh/mq anno
- Indice prestazione energetica rinnovabile
- 15,18 kWh/mq anno
- Codice identificativo
- 0720246362
- Scadenza
- 07/02/2034
Tipo di catasto Fabbricati |
Categoria A2 Abitazioni di tipo civile |
Rendita € 386,03 |
Tipo di catasto Fabbricati |
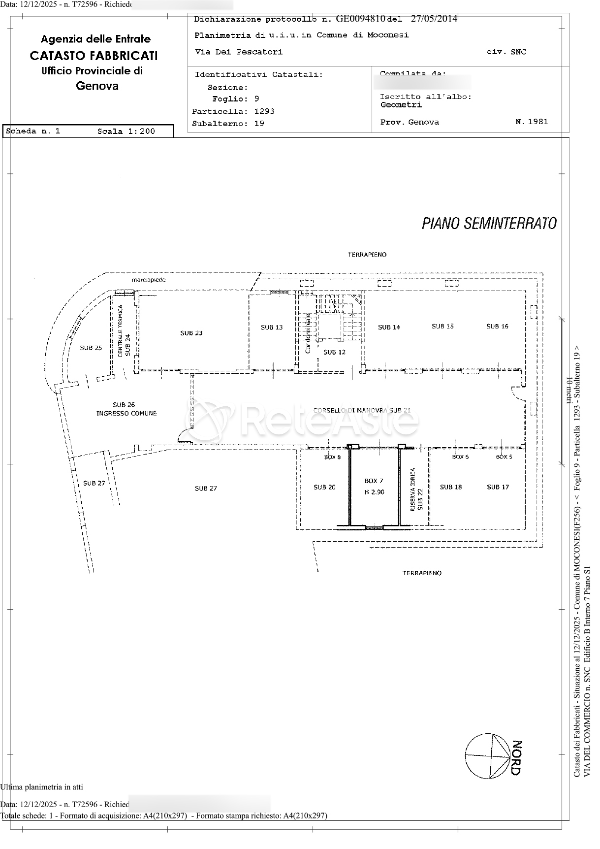
Categoria C6 Stalle, scuderie, rimesse, autorimesse (senza fine di lucro) |
Rendita € 46,48 |
Mappa e punti di interesse
Consulta la mappa e scopri cosa c’è nel raggio di 600 metri: potresti trovare i servizi che rendono questa proprietà perfetta per te
Cliccando sulle categorie della legenda puoi aggiungere o rimuovere i punti di interesse, per una consultazione più semplice e personalizzata