Codice
763
Complesso turistico
Complesso turistico
Via Dante 86095 Frosolone (IS)
Ampio complesso immobiliare immerso nella cornice collinare di Frosolone (IS), una soluzione ideale per attività ricettive e di intrattenimento.
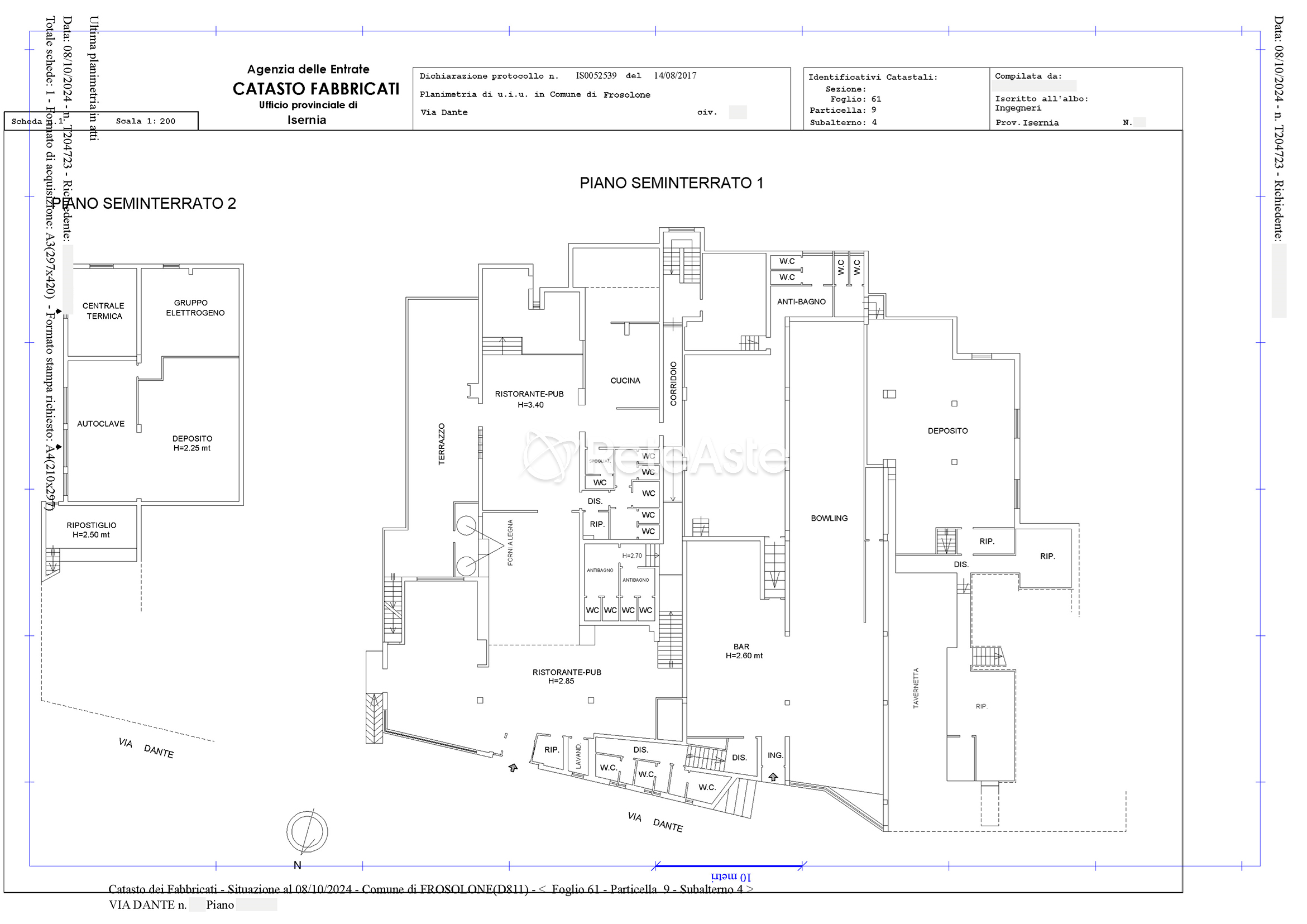
La struttura, costruita nei primi anni '80 e con una superficie complessiva di circa 3.450 mq, si sviluppa su cinque livelli: nei piani seminterrati trovano spazio i locali tecnici, come la centrale termica, l'autoclave e il gruppo elettrogeno, insieme a un ristorante-pizzeria con annesso pub, cucina e servizi igienici. Al piano rialzato, ampie sale per ricevimenti e terrazzi panoramici sono spazi ideali per eventi e cerimonie.
I piani superiori, primo e sottotetto abitabile, ospitano circa 20 camere con servizi privati. Una nota distintiva è rappresentata dall'area dedicata al bar, alla sala giochi e al bowling, situata in uno dei livelli seminterrati, che aggiunge un valore ricreativo alla struttura.
L'edificio è stato realizzato con una solida struttura portante in cemento armato, solai e coperture in laterocemento e tamponature in laterizio. Gli impianti elettrico, idrico-sanitario, di riscaldamento e condizionamento sono funzionanti, seppur l'intera struttura necessiti di interventi di ristrutturazione per riportarla al suo massimo potenziale.
Frosolone, con il suo patrimonio naturale e culturale, è una località che richiama visitatori amanti delle escursioni, della natura e delle tradizioni locali. La posizione geografica, facilmente raggiungibile ma lontana dal caos cittadino, rende questa proprietà una scelta ideale per chi desidera investire in un'attività turistica, sfruttando al meglio le potenzialità offerte dal territorio circostante.
Si rende noto che il complesso gode di servitù per destinazione del padre di famiglia a carico del cortile retrostante.
Vendita soggetta a IVA
La struttura, costruita nei primi anni '80 e con una superficie complessiva di circa 3.450 mq, si sviluppa su cinque livelli: nei piani seminterrati trovano spazio i locali tecnici, come la centrale termica, l'autoclave e il gruppo elettrogeno, insieme a un ristorante-pizzeria con annesso pub, cucina e servizi igienici. Al piano rialzato, ampie sale per ricevimenti e terrazzi panoramici sono spazi ideali per eventi e cerimonie.
I piani superiori, primo e sottotetto abitabile, ospitano circa 20 camere con servizi privati. Una nota distintiva è rappresentata dall'area dedicata al bar, alla sala giochi e al bowling, situata in uno dei livelli seminterrati, che aggiunge un valore ricreativo alla struttura.
L'edificio è stato realizzato con una solida struttura portante in cemento armato, solai e coperture in laterocemento e tamponature in laterizio. Gli impianti elettrico, idrico-sanitario, di riscaldamento e condizionamento sono funzionanti, seppur l'intera struttura necessiti di interventi di ristrutturazione per riportarla al suo massimo potenziale.
Frosolone, con il suo patrimonio naturale e culturale, è una località che richiama visitatori amanti delle escursioni, della natura e delle tradizioni locali. La posizione geografica, facilmente raggiungibile ma lontana dal caos cittadino, rende questa proprietà una scelta ideale per chi desidera investire in un'attività turistica, sfruttando al meglio le potenzialità offerte dal territorio circostante.
Si rende noto che il complesso gode di servitù per destinazione del padre di famiglia a carico del cortile retrostante.
Vendita soggetta a IVA
Large real estate complex nestled in the hilly setting of Frosolone (IS), an ideal solution for hospitality and entertainment activities.
The structure, built in the early 1980s and with a total area of approximately 3,450 square meters, is developed on five levels: in the basement floors there are technical rooms, such as the heating plant, the autoclave, and the generator, along with a restaurant-pizzeria with an attached pub, kitchen, and bathrooms. On the raised ground floor, spacious reception rooms and panoramic terraces are ideal spaces for events and ceremonies.
The upper floors, the first floor and habitable attic, host around 20 rooms with private facilities. A distinctive feature is the area dedicated to the bar, game room, and bowling alley, located on one of the basement levels, which adds a recreational value to the structure.
The building was constructed with a solid reinforced concrete structure, with asbestos cement floors and roofs, and brick infill walls. The electrical, plumbing, heating, and air conditioning systems are operational, although the entire structure requires renovation to bring it back to its full potential.
Frosolone, with its natural and cultural heritage, is a location that attracts visitors who love excursions, nature, and local traditions. The geographical location, easily accessible but far from the city chaos, makes this property an ideal choice for those looking to invest in a tourism business, making the most of the potential offered by the surrounding area.
The structure, built in the early 1980s and with a total area of approximately 3,450 square meters, is developed on five levels: in the basement floors there are technical rooms, such as the heating plant, the autoclave, and the generator, along with a restaurant-pizzeria with an attached pub, kitchen, and bathrooms. On the raised ground floor, spacious reception rooms and panoramic terraces are ideal spaces for events and ceremonies.
The upper floors, the first floor and habitable attic, host around 20 rooms with private facilities. A distinctive feature is the area dedicated to the bar, game room, and bowling alley, located on one of the basement levels, which adds a recreational value to the structure.
The building was constructed with a solid reinforced concrete structure, with asbestos cement floors and roofs, and brick infill walls. The electrical, plumbing, heating, and air conditioning systems are operational, although the entire structure requires renovation to bring it back to its full potential.
Frosolone, with its natural and cultural heritage, is a location that attracts visitors who love excursions, nature, and local traditions. The geographical location, easily accessible but far from the city chaos, makes this property an ideal choice for those looking to invest in a tourism business, making the most of the potential offered by the surrounding area.
Vaste complexe immobilier immergé dans le paysage vallonné de Frosolone (IS), une solution idéale pour les activités d'accueil et de divertissement.
Le bâtiment, construit au début des années 80 et d'une superficie totale d'environ 3 450 m², s'étend sur cinq niveaux : les étages souterrains abritent des locaux techniques tels que la chaufferie, l'autoclave et le groupe électrogène, ainsi qu'un restaurant-pizzeria avec pub attenant, cuisine et sanitaires. Au rez-de-chaussée, de vastes salles de réception et des terrasses panoramiques sont des espaces idéaux pour les événements et les cérémonies.
Les étages supérieurs, premier et grenier habitable, abritent environ 20 chambres avec salles de bains privatives. Une caractéristique distinctive est représentée par la zone dédiée au bar, à la salle de jeux et au bowling, située à l'un des niveaux sous-sol, ajoutant une valeur récréative à la structure.
Le bâtiment a été construit avec une structure portante en béton armé, des dalles et des couvertures en fibrociment et des murs en briques. Les installations électriques, hydrauliques-sanitaires, de chauffage et de climatisation sont fonctionnelles, bien que l'ensemble de la structure nécessite des travaux de rénovation pour la ramener à son plein potentiel.
Frosolone, avec son patrimoine naturel et culturel, est un lieu qui attire les visiteurs amateurs de randonnées, de nature et de traditions locales. La position géographique, facilement accessible mais loin de l'agitation des villes, fait de cette propriété un choix idéal pour ceux qui souhaitent investir dans une activité touristique, en exploitant au mieux les potentialités offertes par le territoire environnant.
Le bâtiment, construit au début des années 80 et d'une superficie totale d'environ 3 450 m², s'étend sur cinq niveaux : les étages souterrains abritent des locaux techniques tels que la chaufferie, l'autoclave et le groupe électrogène, ainsi qu'un restaurant-pizzeria avec pub attenant, cuisine et sanitaires. Au rez-de-chaussée, de vastes salles de réception et des terrasses panoramiques sont des espaces idéaux pour les événements et les cérémonies.
Les étages supérieurs, premier et grenier habitable, abritent environ 20 chambres avec salles de bains privatives. Une caractéristique distinctive est représentée par la zone dédiée au bar, à la salle de jeux et au bowling, située à l'un des niveaux sous-sol, ajoutant une valeur récréative à la structure.
Le bâtiment a été construit avec une structure portante en béton armé, des dalles et des couvertures en fibrociment et des murs en briques. Les installations électriques, hydrauliques-sanitaires, de chauffage et de climatisation sont fonctionnelles, bien que l'ensemble de la structure nécessite des travaux de rénovation pour la ramener à son plein potentiel.
Frosolone, avec son patrimoine naturel et culturel, est un lieu qui attire les visiteurs amateurs de randonnées, de nature et de traditions locales. La position géographique, facilement accessible mais loin de l'agitation des villes, fait de cette propriété un choix idéal pour ceux qui souhaitent investir dans une activité touristique, en exploitant au mieux les potentialités offertes par le territoire environnant.
Großes Immobilienkomplex in der hügeligen Umgebung von Frosolone (IS), eine ideale Lösung für Beherbergungs- und Unterhaltungsaktivitäten.
Die Struktur, die in den frühen 1980er Jahren erbaut wurde und eine Gesamtfläche von ca. 3.450 qm hat, erstreckt sich über fünf Ebenen: im Untergeschoss finden sich technische Räume wie das Heizkraftwerk, der Druckbehälter und der Generator sowie ein Restaurant-Pizzeria mit angeschlossenem Pub, Küche und Toiletten. Im Erdgeschoss bieten große Empfangssäle und Panoramaterrassen ideale Räume für Veranstaltungen und Zeremonien.
Die oberen Etagen, das erste Obergeschoss und das bewohnbare Dachgeschoss, beherbergen etwa 20 Zimmer mit eigenen Bädern. Ein besonderer Schwerpunkt liegt auf dem Bereich mit Bar, Spielzimmer und Bowlingbahn, der sich auf einer der Untergeschossebenen befindet und der Struktur einen zusätzlichen Freizeitwert verleiht.
Das Gebäude wurde mit einer soliden Stahlbetontragkonstruktion, Dachböden und Dacheindeckungen aus Faserzement sowie Mauerwerksverkleidungen erbaut. Die elektrischen, sanitären, Heizungs- und Klimaanlagen funktionieren, obwohl die gesamte Struktur Renovierungsarbeiten benötigt, um ihr volles Potenzial auszuschöpfen.
Frosolone, mit seinem natürlichen und kulturellen Erbe, ist ein Ort, der Besucher anzieht, die Wanderungen, Natur und lokale Traditionen lieben. Die geografische Lage, leicht erreichbar, aber fernab vom Stadtlärm, macht diese Immobilie zu einer idealen Wahl für diejenigen, die in das Tourismusgeschäft investieren möchten und die Potenziale der umliegenden Landschaft bestmöglich nutzen wollen.
Die Struktur, die in den frühen 1980er Jahren erbaut wurde und eine Gesamtfläche von ca. 3.450 qm hat, erstreckt sich über fünf Ebenen: im Untergeschoss finden sich technische Räume wie das Heizkraftwerk, der Druckbehälter und der Generator sowie ein Restaurant-Pizzeria mit angeschlossenem Pub, Küche und Toiletten. Im Erdgeschoss bieten große Empfangssäle und Panoramaterrassen ideale Räume für Veranstaltungen und Zeremonien.
Die oberen Etagen, das erste Obergeschoss und das bewohnbare Dachgeschoss, beherbergen etwa 20 Zimmer mit eigenen Bädern. Ein besonderer Schwerpunkt liegt auf dem Bereich mit Bar, Spielzimmer und Bowlingbahn, der sich auf einer der Untergeschossebenen befindet und der Struktur einen zusätzlichen Freizeitwert verleiht.
Das Gebäude wurde mit einer soliden Stahlbetontragkonstruktion, Dachböden und Dacheindeckungen aus Faserzement sowie Mauerwerksverkleidungen erbaut. Die elektrischen, sanitären, Heizungs- und Klimaanlagen funktionieren, obwohl die gesamte Struktur Renovierungsarbeiten benötigt, um ihr volles Potenzial auszuschöpfen.
Frosolone, mit seinem natürlichen und kulturellen Erbe, ist ein Ort, der Besucher anzieht, die Wanderungen, Natur und lokale Traditionen lieben. Die geografische Lage, leicht erreichbar, aber fernab vom Stadtlärm, macht diese Immobilie zu einer idealen Wahl für diejenigen, die in das Tourismusgeschäft investieren möchten und die Potenziale der umliegenden Landschaft bestmöglich nutzen wollen.
弗罗索洛内(IS)的丘陵风景中坐落着一个大型房地产综合体,是经营住宿和娱乐活动的理想选择。这座建筑建于80年代初,总面积约3450平方米,分为五层:地下室设有技术设施,如供热中心、自来水泵和发电机组,以及带有餐厅-比萨店、酒吧、厨房和卫生间的设施。一楼设有宽敞的宴会厅和全景露台,是举办活动和仪式的理想空间。上层,即一楼和可居住的阁楼,设有大约20间带私人浴室的客房。一个特色是设有酒吧、游戏室和保龄球场的区域,位于其中一个地下室层,为建筑增添了娱乐价值。建筑物由坚固的钢筋混凝土结构建成,楼板和屋顶都是石棉水泥制成,墙体用砖砌成。电气、给水、供暖和空调系统均正常运作,尽管整个建筑需要进行翻新工作,以释放其最大潜力。弗罗索洛内以其自然和文化遗产而闻名,吸引了热爱远足、大自然和当地传统的访客。地理位置便利但远离城市喧嚣,使这处财产成为那些希望在旅游业进行投资并最大程度利用周围地区潜力的理想选择。
Обширный комплекс недвижимости, расположенный в холмистой местности Фросолоне (Изерния), идеальное решение для гостиничного и развлекательного бизнеса. Здание, построенное в начале 80-х годов и общей площадью около 3 450 кв.м, раскинуто на пяти уровнях: в подземных этажах находятся технические помещения, такие как тепловая станция, автоклав и дизель-генератор, а также ресторан-пиццерия с прилегающим пабом, кухней и туалетами. На первом этаже широкие залы для приемов и панорамные террасы являются идеальными местами для мероприятий и церемоний. На верхних этажах, первом и жилом мансардном этаже, размещено около 20 номеров с отдельными ванными комнатами. Особенностью является зона бара, игровой комнаты и кегельбана, расположенная на одном из полуподвальных уровней, что добавляет рекреационную ценность зданию. Здание построено с прочной железобетонной несущей конструкцией, перекрытиями и крышами из легкого бетона и фасадами из кирпича. Электрические, водоснабжающие, отопительные и кондиционирования системы работают, хотя требуются работы по реставрации всей структуры, чтобы вернуть ее к максимальному потенциалу. Фросолоне, с его природным и культурным наследием, является местом, которое привлекает любителей экскурсий, природы и местных традиций. Географическое расположение, легко доступное, но вдали от городской суеты, делает эту собственность идеальным выбором для тех, кто хочет инвестировать в туристический бизнес, максимально используя потенциал окружающей местности.
- Data annuncio
- 25/02/2025
- Tipologia
- Complesso turistico
- Diritto
- Piena proprietà
- Quota
- 1/1
- Classificazione energetica
- D
- Indice prestazione energetica
- 469,97 kWh/mq anno
- Indice prestazione energetica rinnovabile
- 3,27 kWh/mq anno
- Codice identificativo
- 9402225000033104
- Scadenza
- 16/01/2035
Tipo di catasto Fabbricati |
Categoria D8 Fabbricati costruiti o adattati per le speciali esigenze di un'attività commerciale e non suscettibili di destinazione diversa senza radicali trasformazioni |
Rendita € 8.055,04 |
Tipo di catasto Fabbricati |
Categoria D8 Fabbricati costruiti o adattati per le speciali esigenze di un'attività commerciale e non suscettibili di destinazione diversa senza radicali trasformazioni |
Rendita € 14.988,00 |
Tipo di catasto Fabbricati |
Categoria D2 Alberghi e pensioni (con fine di lucro) |
Rendita € 1.776,00 |
Tipo di catasto Fabbricati |
Categoria D2 Alberghi e pensioni (con fine di lucro) |
Rendita € 1.342,00 |
Tipo di catasto Fabbricati |
Categoria D2 Alberghi e pensioni (con fine di lucro) |
Rendita € 258,00 |
Tipo di catasto Fabbricati |
Categoria D2 Alberghi e pensioni (con fine di lucro) |
Rendita € 1.372,00 |
Tipo di catasto Fabbricati |
Categoria D2 Alberghi e pensioni (con fine di lucro) |
Rendita € 1.146,00 |
Tipo di catasto Fabbricati |
Categoria D2 Alberghi e pensioni (con fine di lucro) |
Rendita € 362,00 |