Codice
293
Edificio industriale
Edificio industriale
Via Zona Industriale 66034 Lanciano (CH)
-
11855Superficie commerciale
Porzione di edificio destinato ad attività industriale per la lavorazione di salumi e formaggi, con appartamento e corte pertinenziale.
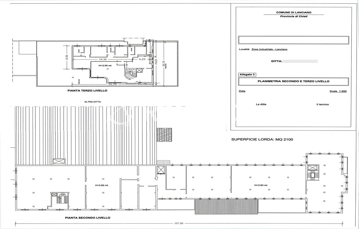
L’accesso principale al capannone ad uso industriale avviene dal piano seminterrato, in cui sono collocati sia gli ingressi per il personale amministrativo che per il personale addetto alle lavorazioni delle materie prime, i 4 vani scale ed i 3 ascensori/montacarichi di collegamento ai piani superiori, tra cui scale ed ascensore di accesso all’appartamento posto all’ultimo piano.
Al piano seminterrato sono presenti le zone di stoccaggio, le celle frigorifere e locali spogliatoi.
Al piano terra sono presenti gli uffici amministrativi ed altre zone di stoccaggio e lavorazione.
Al piano primo sono collocati le celle di lavorazione e di stagionatura.
Infine al secondo piano è collocata l’abitazione pertinenziale all’attività con l’utilizzo di tutto il lastrico solare di copertura.
Completa il tutto l’uso della corte esterna di circa 7.560 mq, quale bene comune non censibile.
Prezzo stimato iniziale € 4.700.000,00.
L’accesso principale al capannone ad uso industriale avviene dal piano seminterrato, in cui sono collocati sia gli ingressi per il personale amministrativo che per il personale addetto alle lavorazioni delle materie prime, i 4 vani scale ed i 3 ascensori/montacarichi di collegamento ai piani superiori, tra cui scale ed ascensore di accesso all’appartamento posto all’ultimo piano.
Al piano seminterrato sono presenti le zone di stoccaggio, le celle frigorifere e locali spogliatoi.
Al piano terra sono presenti gli uffici amministrativi ed altre zone di stoccaggio e lavorazione.
Al piano primo sono collocati le celle di lavorazione e di stagionatura.
Infine al secondo piano è collocata l’abitazione pertinenziale all’attività con l’utilizzo di tutto il lastrico solare di copertura.
Completa il tutto l’uso della corte esterna di circa 7.560 mq, quale bene comune non censibile.
Prezzo stimato iniziale € 4.700.000,00.
Portion of a building intended for industrial activities for the processing of cured meats and cheeses, with an apartment and related courtyard.
The main access to the industrial warehouse is from the basement, where there are entrances for administrative staff and staff involved in processing raw materials, 4 stairwells, and 3 elevators/freight elevators connecting to the upper floors, including stairs and an elevator accessing the apartment on the top floor.
In the basement, there are storage areas, refrigerated cells, and changing rooms.
On the ground floor, there are administrative offices and other storage and processing areas.
On the first floor, there are processing and aging cells.
Finally, on the second floor, the apartment related to the activities is located, utilizing the entire roof terrace for coverage.
The whole property also includes the use of an external courtyard of about 7,560 square meters, which is a common unregistered asset.
The main access to the industrial warehouse is from the basement, where there are entrances for administrative staff and staff involved in processing raw materials, 4 stairwells, and 3 elevators/freight elevators connecting to the upper floors, including stairs and an elevator accessing the apartment on the top floor.
In the basement, there are storage areas, refrigerated cells, and changing rooms.
On the ground floor, there are administrative offices and other storage and processing areas.
On the first floor, there are processing and aging cells.
Finally, on the second floor, the apartment related to the activities is located, utilizing the entire roof terrace for coverage.
The whole property also includes the use of an external courtyard of about 7,560 square meters, which is a common unregistered asset.
Partie d'un bâtiment destinée à des activités industrielles pour la transformation de charcuteries et de fromages, avec un appartement et une cour attenante.
L'accès principal à la zone industrielle se fait depuis le sous-sol, où se trouvent à la fois les entrées pour le personnel administratif et pour le personnel chargé du traitement des matières premières, les 4 cages d'escalier et les 3 ascenseurs/monte-charges reliant aux étages supérieurs, y compris un escalier et un ascenseur menant à l'appartement situé au dernier étage.
Au sous-sol se trouvent les zones de stockage, les chambres froides et les vestiaires. Au rez-de-chaussée se trouvent les bureaux administratifs et d'autres zones de stockage et de traitement. Au premier étage se trouvent les salles de traitement et de maturation. Enfin, au deuxième étage se trouve l'appartement lié à l'activité avec l'utilisation de tout le toit en terrasse. Le tout est complété par l'utilisation d'une cour extérieure d'environ 7 560 m², en tant que bien commun non enregistré.
Prix initial estimé à 4 700 000,00 €.
L'accès principal à la zone industrielle se fait depuis le sous-sol, où se trouvent à la fois les entrées pour le personnel administratif et pour le personnel chargé du traitement des matières premières, les 4 cages d'escalier et les 3 ascenseurs/monte-charges reliant aux étages supérieurs, y compris un escalier et un ascenseur menant à l'appartement situé au dernier étage.
Au sous-sol se trouvent les zones de stockage, les chambres froides et les vestiaires. Au rez-de-chaussée se trouvent les bureaux administratifs et d'autres zones de stockage et de traitement. Au premier étage se trouvent les salles de traitement et de maturation. Enfin, au deuxième étage se trouve l'appartement lié à l'activité avec l'utilisation de tout le toit en terrasse. Le tout est complété par l'utilisation d'une cour extérieure d'environ 7 560 m², en tant que bien commun non enregistré.
Prix initial estimé à 4 700 000,00 €.
Ein Teil eines Gebäudes, der für die industrielle Verarbeitung von Wurst und Käse vorgesehen ist, mit einer Wohnung und einem dazugehörigen Hof.
Der Haupteingang zur Industriehalle befindet sich im Untergeschoss, in dem sich sowohl die Eingänge für das Verwaltungspersonal als auch für das Personal, das mit der Verarbeitung der Rohstoffe befasst ist, befinden, sowie 4 Treppenhäuser und 3 Aufzüge/Lastenaufzüge zur Verbindung mit den oberen Stockwerken, darunter das Treppenhaus und der Aufzug für den Zugang zur Wohnung im obersten Stockwerk.
Im Untergeschoss befinden sich Lagerbereiche, Kühlzellen und Umkleideräume. Im Erdgeschoss befinden sich Verwaltungsbüros und weitere Lager- und Verarbeitungsbereiche. Im ersten Stock befinden sich Verarbeitungs- und Reiferäume. Schließlich befindet sich im zweiten Stock die Wohnung, die zur Aktivität gehört, mit der Nutzung der gesamten Dachterrasse. Das Ganze wird durch die Nutzung des ca. 7.560 Quadratmeter großen Außenhofs als nicht erfassbares gemeinschaftliches Gut vervollständigt.
Geschätzter Anfangspreis 4.700.000,00 Euro.
Der Haupteingang zur Industriehalle befindet sich im Untergeschoss, in dem sich sowohl die Eingänge für das Verwaltungspersonal als auch für das Personal, das mit der Verarbeitung der Rohstoffe befasst ist, befinden, sowie 4 Treppenhäuser und 3 Aufzüge/Lastenaufzüge zur Verbindung mit den oberen Stockwerken, darunter das Treppenhaus und der Aufzug für den Zugang zur Wohnung im obersten Stockwerk.
Im Untergeschoss befinden sich Lagerbereiche, Kühlzellen und Umkleideräume. Im Erdgeschoss befinden sich Verwaltungsbüros und weitere Lager- und Verarbeitungsbereiche. Im ersten Stock befinden sich Verarbeitungs- und Reiferäume. Schließlich befindet sich im zweiten Stock die Wohnung, die zur Aktivität gehört, mit der Nutzung der gesamten Dachterrasse. Das Ganze wird durch die Nutzung des ca. 7.560 Quadratmeter großen Außenhofs als nicht erfassbares gemeinschaftliches Gut vervollständigt.
Geschätzter Anfangspreis 4.700.000,00 Euro.
建筑部分用于工业活动,主要用于加工腌制肉类和奶酪,内设公寓和相关庭院。工业大楼的主要入口位于半地下室层,这里设有管理人员和加工人员的入口,4个楼梯间和3部连接上层楼层的电梯/升降机,其中包括通往顶层公寓的楼梯和电梯的入口。半地下室层设有存储区域、冷藏室和更衣室。一楼设有行政办公室和其他存储和加工区域。二楼设有加工和熟化室。最后,三楼设有与活动相关的住宅,利用整个屋顶太阳能板。综合利用一个约7,560平方米的外部庭院,作为不可计价的共同财产。初始估价价格为4,700,000.00欧元。
Часть здания, предназначенная для промышленной деятельности по производству колбас и сыра, с квартирой и двором.
Основной доступ к промышленному хранилищу осуществляется через подвальный этаж, где находятся входы как для административного персонала, так и для работников, занимающихся обработкой сырья, 4 лестничные клетки и 3 лифта/грузовых лифта, соединяющих этажи, среди которых лестница и лифт для доступа к квартире на верхнем этаже. На подвальном этаже находятся зоны хранения, холодильные камеры и раздевалки. На первом этаже расположены офисные помещения, а также другие зоны хранения и обработки. На втором этаже находятся помещения для производства и выдержки. Наконец, на втором этаже расположено жилище, принадлежащее к деятельности, с использованием всей крыши здания. Все это дополняется использованием внешнего двора примерно 7 560 кв. м, как общественное имущество, не подлежащее учету.
Начальная ориентировочная цена € 4 700 000,00.
Основной доступ к промышленному хранилищу осуществляется через подвальный этаж, где находятся входы как для административного персонала, так и для работников, занимающихся обработкой сырья, 4 лестничные клетки и 3 лифта/грузовых лифта, соединяющих этажи, среди которых лестница и лифт для доступа к квартире на верхнем этаже. На подвальном этаже находятся зоны хранения, холодильные камеры и раздевалки. На первом этаже расположены офисные помещения, а также другие зоны хранения и обработки. На втором этаже находятся помещения для производства и выдержки. Наконец, на втором этаже расположено жилище, принадлежащее к деятельности, с использованием всей крыши здания. Все это дополняется использованием внешнего двора примерно 7 560 кв. м, как общественное имущество, не подлежащее учету.
Начальная ориентировочная цена € 4 700 000,00.
- Data annuncio
- 08/04/2024
- Tipologia
- Edificio industriale
- Diritto
- Piena proprietà
- Quota
- 1/1
- Ascensore
- Si
- Classificazione energetica
- In fase di richiesta
Tipo di catasto Fabbricati |
Categoria D7 Fabbricati costruiti o adattati per le speciali esigenze di un'attività industriale e non suscettibili di destinazione diversa senza radicali trasformazioni |
Rendita - |
Tipo di catasto Fabbricati |
Categoria A2 Abitazioni di tipo civile |
Rendita € 1.622,99 |
Tipo di catasto Fabbricati |
Categoria B.C.n.C. Beni comuni non censibili |
Rendita - |