Codice
408
Fondo Commerciale
Fondo Commerciale
Via Giacomo Leopardi 57023 Cecina (LI)
Il complesso edilizio è posto all'interno di un'area residenziale e commerciale sviluppato su quattro piani, di cui tre fuori terra ed una interrato, composto da:
sul fronte principale è presente un’area esterna adibita alla distribuzione carburanti e a parcheggio;
Fondo connesso all’attività di rifornimento carburanti e destinato ad officina meccanica per riparazioni auto;
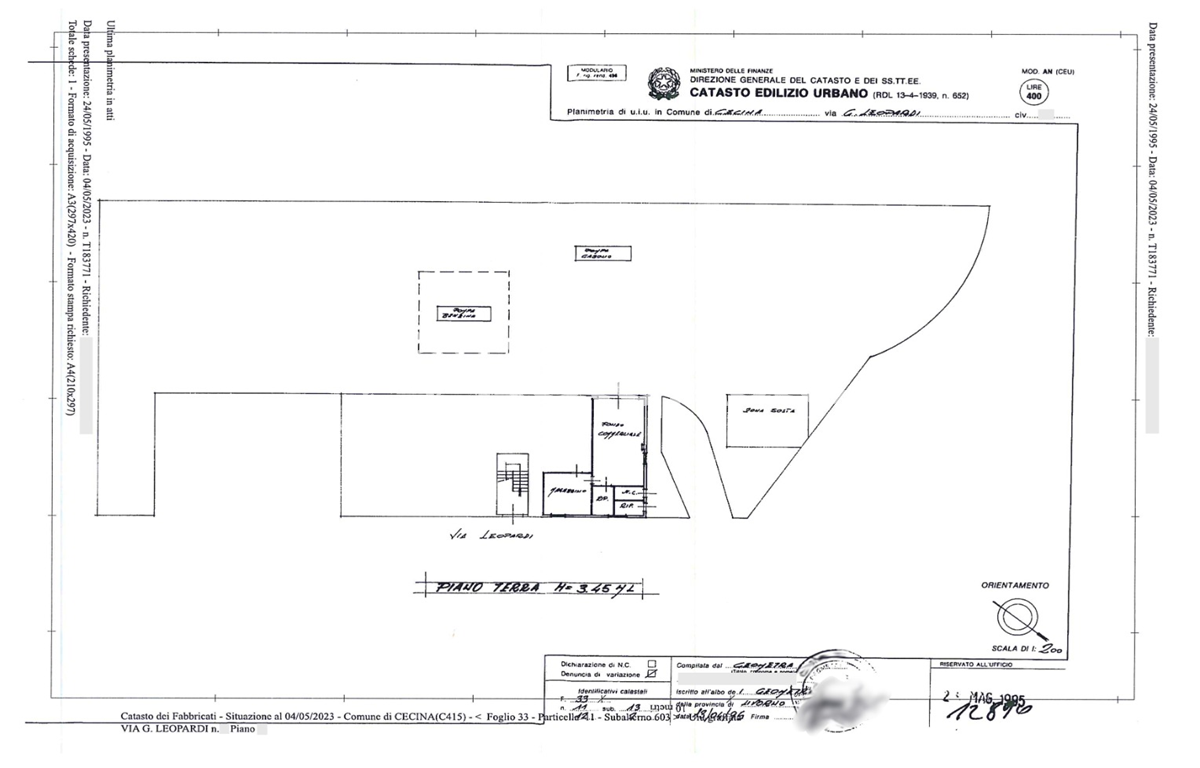
Fondo sviluppato su due livelli (piano terreno e piano seminterrato) e composto da un locale adibito alla ristorazione, un locale laboratorio/confezionamento prodotti e da un blocco servizi igienici e spogliatoio al piano terra, ampio magazzino al piano seminterrato;
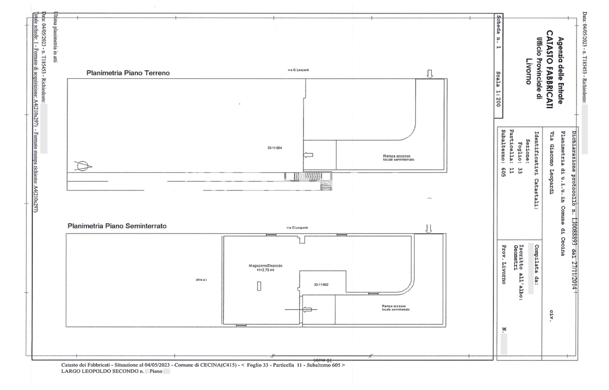
Magazzino di mq. catastali 159 al piano primo seminterrato, con accesso da scala comune;
Magazzino di mq. catastale 13 al piano primo seminterrato.
Stato di occupazione: è in essere regolare contratto di locazione avente ad oggetto le unità immobiliari identificate catastalmente al Foglio 33, particella 11, subalterno 2 e subalterno 13. Il contratto ha durata novennale decorrente dall’11/11/2012, con prossima scadenza al 10/11/2030, e canone annuo pari ad euro 44.469,73.
Documentazione in fase di analisi.
Fondo sviluppato su due livelli (piano terreno e piano seminterrato) e composto da un locale adibito alla ristorazione, un locale laboratorio/confezionamento prodotti e da un blocco servizi igienici e spogliatoio al piano terra, ampio magazzino al piano seminterrato;
Magazzino di mq. catastali 159 al piano primo seminterrato, con accesso da scala comune;
Magazzino di mq. catastale 13 al piano primo seminterrato.
Stato di occupazione: è in essere regolare contratto di locazione avente ad oggetto le unità immobiliari identificate catastalmente al Foglio 33, particella 11, subalterno 2 e subalterno 13. Il contratto ha durata novennale decorrente dall’11/11/2012, con prossima scadenza al 10/11/2030, e canone annuo pari ad euro 44.469,73.
Documentazione in fase di analisi.
The building complex is located within a residential and commercial area developed on four floors, three above ground and one below ground, comprising the following: on the main front, there is an external area used for fuel distribution and parking; a space connected to the fuel supply activity and intended for a car repair workshop; a space developed on two levels (ground floor and basement) consisting of a restaurant area, a laboratory/packaging area, and toilet and changing facilities on the ground floor, with a large warehouse in the basement; a warehouse of 159 square meters on the first basement floor, accessed by a common staircase; a warehouse of 13 square meters on the first basement floor.
Occupancy status: there is a valid lease contract for the real estate units identified in the land registry at Sheet 33, parcel 11, sub-fund 2, and sub-fund 13. The contract has a term of nine years starting from 11/11/2012, with the next expiry on 10/11/2030, and an annual rent of 44,469.73 euros.
Documentation is currently under analysis.
Occupancy status: there is a valid lease contract for the real estate units identified in the land registry at Sheet 33, parcel 11, sub-fund 2, and sub-fund 13. The contract has a term of nine years starting from 11/11/2012, with the next expiry on 10/11/2030, and an annual rent of 44,469.73 euros.
Documentation is currently under analysis.
- Data annuncio
- 29/04/2024
- Tipologia
- Fondo Commerciale
- Diritto
- Piena proprietà
- Quota
- 1/1
- Classificazione energetica
- In fase di richiesta
Tipo di catasto Fabbricati |
Categoria C1 Negozi e botteghe |
Rendita € 1.186,20 |
Foglio 33 |
Particella 11 |
Sub 2 |
Tipo di catasto Fabbricati |
Categoria C1 Negozi e botteghe |
Rendita € 2.529,19 |
Foglio 33 |
Particella 11 |
Sub 13 |
Tipo di catasto Fabbricati |
Categoria C1 Negozi e botteghe |
Rendita € 6.154,51 |
Foglio 33 |
Particella 11 |
Sub 604 |
Tipo di catasto Fabbricati |
Categoria C2 Magazzini e locali di deposito |
Rendita € 389,61 |
Foglio 33 |
Particella 11 |
Sub 605 |
Tipo di catasto Fabbricati |
Categoria C2 Magazzini e locali di deposito |
Rendita € 31,25 |
Foglio 33 |
Particella 11 |
Sub 602 |