Codice
508
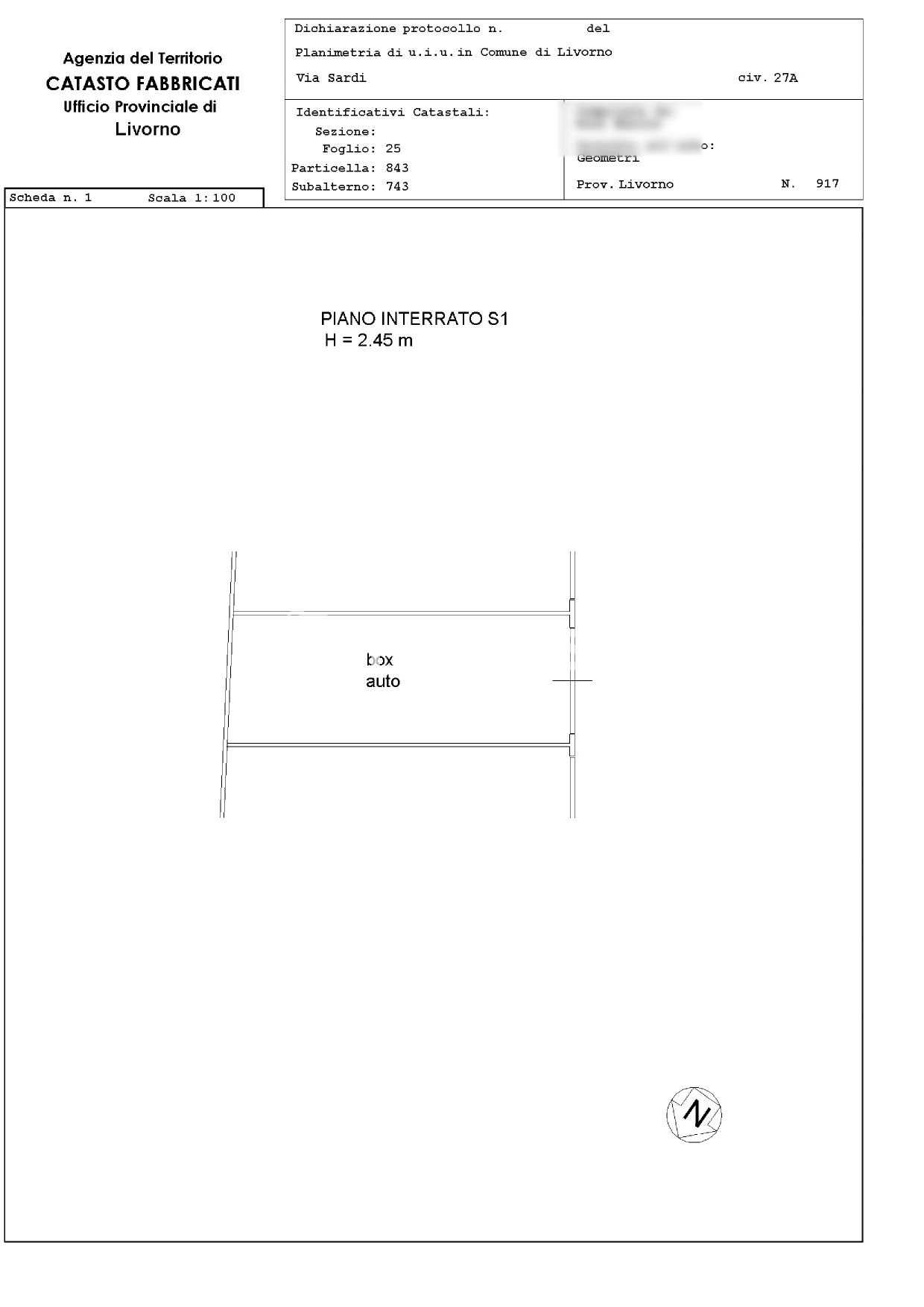
Garage
Garage
Via Sardi 57126 Livorno (LI)
-
22Superficie commerciale
Garage al piano seminterrato primo di 22 metri quadri.
Immobile locato con regolare contratto di locazione decorrente dal 01/04/2020 e prossima scadenza il 31/03/2026. Canone mensile pari ad Euro 223,03.
L’aggiudicatario sarà tenuto al pagamento degli oneri di urbanizzazione in favore del Comune di Livorno da quest’ultimo stimati in Euro 1.643,76 e specificati nelle singole schede di vendita (si consiglia tuttavia di acquisire un conteggio ufficiale presso l’Ente competente).
Come previsto dalla Convenzione del 15/07/2013 intercorsa tra Comune di Livorno e Spil, tali oneri di urbanizzazione non saranno dovuti nel caso in cui il garage si trovi ad una distanza di 500 ml da altra unità immobiliare di proprietà del medesimo aggiudicatario e sia correlato alle esigenze di detta unità, verificandosi in tal caso un’ipotesi di pertinenzialità.
Il Venditore potrà, inoltre, certificare i costi di realizzazione sostenuti per consentire all’aggiudicatario di richiederne l’eventuale detrazione, qualora ne ricorrano i presupposti a termine di legge.
Servitù: La viabilità di collegamento dell’immobile alla pubblica via è gravata da servitù di passo in favore di unità immobiliari private confinanti.
Spese condominiali annuali pari ad Euro 148,30 come da consuntivo 2023.
Immobile locato con regolare contratto di locazione decorrente dal 01/04/2020 e prossima scadenza il 31/03/2026. Canone mensile pari ad Euro 223,03.
L’aggiudicatario sarà tenuto al pagamento degli oneri di urbanizzazione in favore del Comune di Livorno da quest’ultimo stimati in Euro 1.643,76 e specificati nelle singole schede di vendita (si consiglia tuttavia di acquisire un conteggio ufficiale presso l’Ente competente).
Come previsto dalla Convenzione del 15/07/2013 intercorsa tra Comune di Livorno e Spil, tali oneri di urbanizzazione non saranno dovuti nel caso in cui il garage si trovi ad una distanza di 500 ml da altra unità immobiliare di proprietà del medesimo aggiudicatario e sia correlato alle esigenze di detta unità, verificandosi in tal caso un’ipotesi di pertinenzialità.
Il Venditore potrà, inoltre, certificare i costi di realizzazione sostenuti per consentire all’aggiudicatario di richiederne l’eventuale detrazione, qualora ne ricorrano i presupposti a termine di legge.
Servitù: La viabilità di collegamento dell’immobile alla pubblica via è gravata da servitù di passo in favore di unità immobiliari private confinanti.
Spese condominiali annuali pari ad Euro 148,30 come da consuntivo 2023.
Garage on the first basement floor of 22 square meters.
Property leased with a monthly rental contract of €223.03. The successful bidder will be responsible for paying urbanization taxes in favor of the Municipality of Livorno, estimated at €1,643.76 and specified in the individual sale sheets (however, it is recommended to obtain an official calculation from the competent authority).
As provided by the Agreement of 15/07/2013 between the Municipality of Livorno and Spil, these urbanization taxes will not be due if the garage is located 500 meters away from another property owned by the same successful bidder and is related to the needs of that unit, in which case a situation of pertinence occurs.
The Seller may also certify the costs incurred for the construction to allow the successful bidder to claim any potential deduction, if the legal requirements are met.
Servitude: The connectivity of the property to the public road is subject to a right of way in favor of neighboring private properties.
Property leased with a monthly rental contract of €223.03. The successful bidder will be responsible for paying urbanization taxes in favor of the Municipality of Livorno, estimated at €1,643.76 and specified in the individual sale sheets (however, it is recommended to obtain an official calculation from the competent authority).
As provided by the Agreement of 15/07/2013 between the Municipality of Livorno and Spil, these urbanization taxes will not be due if the garage is located 500 meters away from another property owned by the same successful bidder and is related to the needs of that unit, in which case a situation of pertinence occurs.
The Seller may also certify the costs incurred for the construction to allow the successful bidder to claim any potential deduction, if the legal requirements are met.
Servitude: The connectivity of the property to the public road is subject to a right of way in favor of neighboring private properties.
- Data annuncio
- 27/05/2024
- Tipologia
- Garage
- Diritto
- Piena proprietà
- Quota
- 1/1
- Stato occupazione
- Locato
- Tipo contratto
- Commerciale 6+6
- Canone locazione
- € 223 /Mese
- Scadenza contratto locazione
- 31/03/2026
- Classificazione energetica
- Esente
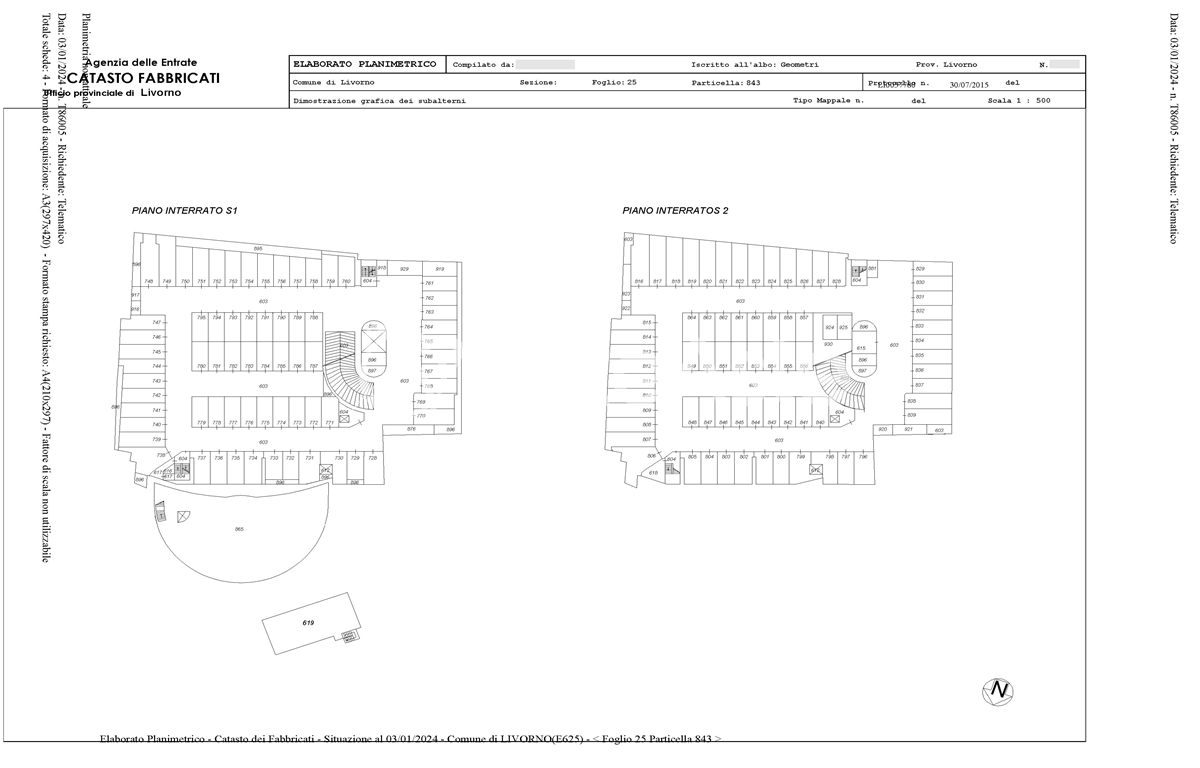
Tipo di catasto Fabbricati |
Categoria C6 Stalle, scuderie, rimesse, autorimesse (senza fine di lucro) |
Rendita - |
Foglio 25 |
Particella 843 |
Sub 743 |
Mappa e punti di interesse
Consulta la mappa e scopri cosa c’è nel raggio di 600 metri: potresti trovare i servizi che rendono questa proprietà perfetta per te
Cliccando sulle categorie della legenda puoi aggiungere o rimuovere i punti di interesse, per una consultazione più semplice e personalizzata