Codice
532
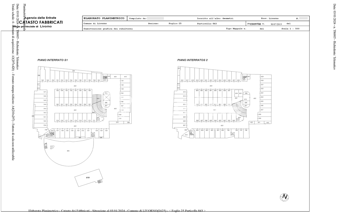
Garage
Garage
Via Sardi 57126 Livorno (LI)
-
17Superficie commerciale
Garage al piano seminterrato primo di 17 metri quadri.
L’aggiudicatario sarà tenuto al pagamento degli oneri di urbanizzazione in favore del Comune di Livorno da quest’ultimo stimati in euro 1.270,18 e specificati nelle singole schede di vendita (si consiglia tuttavia di acquisire un conteggio ufficiale presso l’Ente competente).
Come previsto dalla Convenzione del 15/07/2013 intercorsa tra Comune di Livorno e Spil, tali oneri di urbanizzazione non saranno dovuti nel caso in cui il garage si trovi ad una distanza di 500 ml da altra unità immobiliare di proprietà del medesimo aggiudicatario e sia correlato alle esigenze di detta unità, verificandosi in tal caso un’ipotesi di pertinenzialità.
Il Venditore potrà, inoltre, certificare i costi di realizzazione sostenuti per consentire all’aggiudicatario di richiederne l’eventuale detrazione, qualora ne ricorrano i presupposti a termine di legge.
Servitù: La viabilità di collegamento dell’immobile alla pubblica via è gravata da servitù di passo in favore di unità immobiliari private confinanti.
Spese condominiali annuali pari ad Euro 126,78 come da consuntivo 2023.
L’aggiudicatario sarà tenuto al pagamento degli oneri di urbanizzazione in favore del Comune di Livorno da quest’ultimo stimati in euro 1.270,18 e specificati nelle singole schede di vendita (si consiglia tuttavia di acquisire un conteggio ufficiale presso l’Ente competente).
Come previsto dalla Convenzione del 15/07/2013 intercorsa tra Comune di Livorno e Spil, tali oneri di urbanizzazione non saranno dovuti nel caso in cui il garage si trovi ad una distanza di 500 ml da altra unità immobiliare di proprietà del medesimo aggiudicatario e sia correlato alle esigenze di detta unità, verificandosi in tal caso un’ipotesi di pertinenzialità.
Il Venditore potrà, inoltre, certificare i costi di realizzazione sostenuti per consentire all’aggiudicatario di richiederne l’eventuale detrazione, qualora ne ricorrano i presupposti a termine di legge.
Servitù: La viabilità di collegamento dell’immobile alla pubblica via è gravata da servitù di passo in favore di unità immobiliari private confinanti.
Spese condominiali annuali pari ad Euro 126,78 come da consuntivo 2023.
Garage on the basement floor, measuring 17 square meters.
The winning bidder will be required to pay the urbanization fees in favor of the Municipality of Livorno, estimated at €1,270.18 by the Municipality and specified in the individual sales sheets (however, it is advisable to obtain an official calculation from the relevant Authority).
As provided for in the Agreement dated 15/07/2013 between the Municipality of Livorno and Spil, these urbanization fees will not be due if the garage is located at a distance of 500 meters from another property owned by the same bidder, and is related to the needs of that property, in which case a scenario of relevance occurs.
Furthermore, the Seller may certify the construction costs incurred to allow the winning bidder to claim any deductions, if the conditions required by law are met.
Easements: The road connection of the property to the public road is burdened by a right of way in favor of neighboring private properties.
The winning bidder will be required to pay the urbanization fees in favor of the Municipality of Livorno, estimated at €1,270.18 by the Municipality and specified in the individual sales sheets (however, it is advisable to obtain an official calculation from the relevant Authority).
As provided for in the Agreement dated 15/07/2013 between the Municipality of Livorno and Spil, these urbanization fees will not be due if the garage is located at a distance of 500 meters from another property owned by the same bidder, and is related to the needs of that property, in which case a scenario of relevance occurs.
Furthermore, the Seller may certify the construction costs incurred to allow the winning bidder to claim any deductions, if the conditions required by law are met.
Easements: The road connection of the property to the public road is burdened by a right of way in favor of neighboring private properties.
- Data annuncio
- 27/05/2024
- Tipologia
- Garage
- Diritto
- Piena proprietà
- Quota
- 1/1
- Classificazione energetica
- Esente
Tipo di catasto Fabbricati |
Categoria C6 Stalle, scuderie, rimesse, autorimesse (senza fine di lucro) |
Rendita - |
Foglio 25 |
Particella 843 |
Sub 767 |
Mappa e punti di interesse
Consulta la mappa e scopri cosa c’è nel raggio di 600 metri: potresti trovare i servizi che rendono questa proprietà perfetta per te
Cliccando sulle categorie della legenda puoi aggiungere o rimuovere i punti di interesse, per una consultazione più semplice e personalizzata