Codice
554
Garage
Garage
Via Sardi 57126 Livorno (LI)
-
16Superficie commerciale
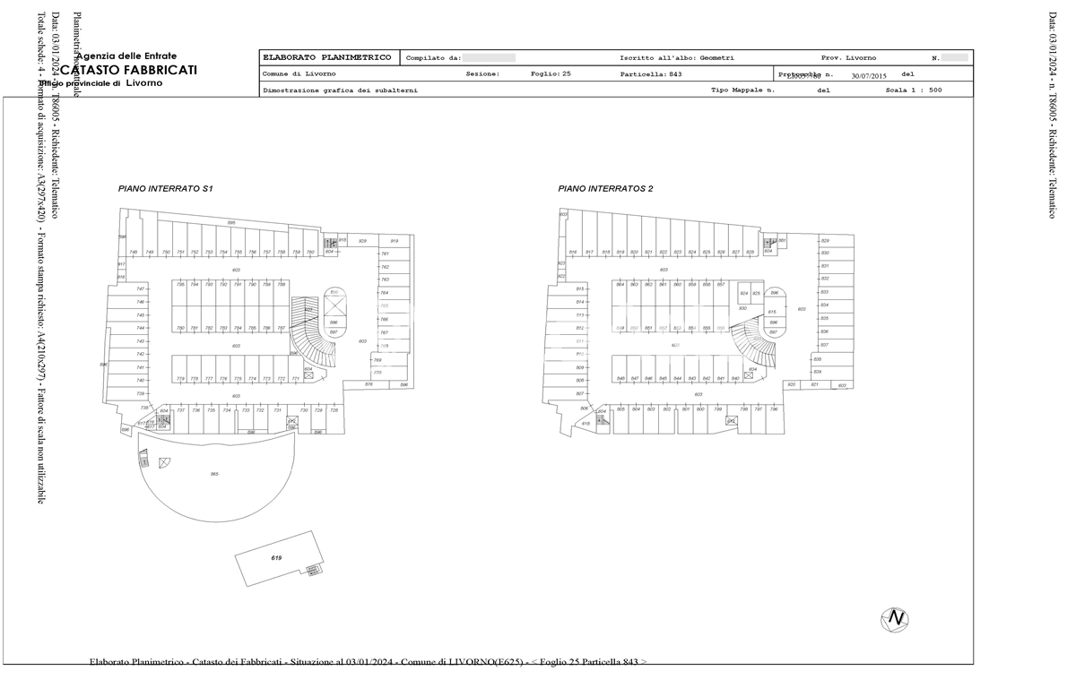
Garage al piano seminterrato primo di 16 metri quadri.
L’aggiudicatario sarà tenuto al pagamento degli oneri di urbanizzazione in favore del Comune di Livorno da quest’ultimo stimati in euro 1.195,46 e specificati nelle singole schede di vendita (si consiglia tuttavia di acquisire un conteggio ufficiale presso l’Ente competente).
Come previsto dalla Convenzione del 15/07/2013 intercorsa tra Comune di Livorno e Spil, tali oneri di urbanizzazione non saranno dovuti nel caso in cui il garage si trovi ad una distanza di 500 ml da altra unità immobiliare di proprietà del medesimo aggiudicatario e sia correlato alle esigenze di detta unità, verificandosi in tal caso un’ipotesi di pertinenzialità.
Il Venditore potrà, inoltre, certificare i costi di realizzazione sostenuti per consentire all’aggiudicatario di richiederne l’eventuale detrazione, qualora ne ricorrano i presupposti a termine di legge.
Servitù: La viabilità di collegamento dell’immobile alla pubblica via è gravata da servitù di passo in favore di unità immobiliari private confinanti.
Spese condominiali annuali pari ad Euro 126,40 come da consuntivo 2023.
L’aggiudicatario sarà tenuto al pagamento degli oneri di urbanizzazione in favore del Comune di Livorno da quest’ultimo stimati in euro 1.195,46 e specificati nelle singole schede di vendita (si consiglia tuttavia di acquisire un conteggio ufficiale presso l’Ente competente).
Come previsto dalla Convenzione del 15/07/2013 intercorsa tra Comune di Livorno e Spil, tali oneri di urbanizzazione non saranno dovuti nel caso in cui il garage si trovi ad una distanza di 500 ml da altra unità immobiliare di proprietà del medesimo aggiudicatario e sia correlato alle esigenze di detta unità, verificandosi in tal caso un’ipotesi di pertinenzialità.
Il Venditore potrà, inoltre, certificare i costi di realizzazione sostenuti per consentire all’aggiudicatario di richiederne l’eventuale detrazione, qualora ne ricorrano i presupposti a termine di legge.
Servitù: La viabilità di collegamento dell’immobile alla pubblica via è gravata da servitù di passo in favore di unità immobiliari private confinanti.
Spese condominiali annuali pari ad Euro 126,40 come da consuntivo 2023.
Garage in the basement first floor of 16 square meters.
The successful bidder will be required to pay urbanization fees in favor of the Municipality of Livorno, estimated by the latter at 1,195.46 euros and specified in the individual sales documents (however, it is advisable to obtain an official calculation from the competent authority).
As provided for in the agreement of 15/07/2013 between the Municipality of Livorno and Spil, these urbanization fees will not be due in the event that the garage is located 500 meters away from another property unit owned by the same successful bidder and is related to the needs of that unit, in which case a situation of pertinence occurs.
The Seller may also certify the costs incurred for the construction to allow the successful bidder to request any deductions, if the legal requirements are met.
Easements: The connection road of the property to the public road is burdened by a right of way in favor of neighboring private property units.
The successful bidder will be required to pay urbanization fees in favor of the Municipality of Livorno, estimated by the latter at 1,195.46 euros and specified in the individual sales documents (however, it is advisable to obtain an official calculation from the competent authority).
As provided for in the agreement of 15/07/2013 between the Municipality of Livorno and Spil, these urbanization fees will not be due in the event that the garage is located 500 meters away from another property unit owned by the same successful bidder and is related to the needs of that unit, in which case a situation of pertinence occurs.
The Seller may also certify the costs incurred for the construction to allow the successful bidder to request any deductions, if the legal requirements are met.
Easements: The connection road of the property to the public road is burdened by a right of way in favor of neighboring private property units.
- Data annuncio
- 27/05/2024
- Tipologia
- Garage
- Diritto
- Piena proprietà
- Quota
- 1/1
- Classificazione energetica
- Esente
Tipo di catasto Fabbricati |
Categoria C6 Stalle, scuderie, rimesse, autorimesse (senza fine di lucro) |
Rendita - |
Foglio 25 |
Particella 843 |
Sub 789 |
Mappa e punti di interesse
Consulta la mappa e scopri cosa c’è nel raggio di 600 metri: potresti trovare i servizi che rendono questa proprietà perfetta per te
Cliccando sulle categorie della legenda puoi aggiungere o rimuovere i punti di interesse, per una consultazione più semplice e personalizzata