Codice
464
Garage
Garage
Via Sardi 57126 Livorno (LI)
-
20Superficie commerciale
-
ptPiano
Garage al piano terra di 20 metri quadri.
Immobile locato con contratto di locazione con canone mensile pari ad Euro 282,90
L’aggiudicatario sarà tenuto al pagamento degli oneri di urbanizzazione in favore del Comune di Livorno da quest’ultimo stimati in Euro 1.494,33 e specificati nelle singole schede di vendita (si consiglia tuttavia di acquisire un conteggio ufficiale presso l’Ente competente).
Come previsto dalla Convenzione del 15/07/2013 intercorsa tra Comune di Livorno e Spil, tali oneri di urbanizzazione non saranno dovuti nel caso in cui il garage si trovi ad una distanza di 500 ml da altra unità immobiliare di proprietà del medesimo aggiudicatario e sia correlato alle esigenze di detta unità, verificandosi in tal caso un’ipotesi di pertinenzialità.
Il Venditore potrà, inoltre, certificare i costi di realizzazione sostenuti per consentire all’aggiudicatario di richiederne l’eventuale detrazione, qualora ne ricorrano i presupposti a termine di legge.
Servitù: La viabilità di collegamento dell’immobile alla pubblica via è gravata da servitù di passo in favore di unità immobiliari private confinanti.
Spese condominiali annuali pari ad Euro 78,21 come da consuntivo 2023.
20 square meter ground floor garage.
The property is leased with a monthly rent of 282.90 euros. The winning bidder will be required to pay the development charges to the Municipality of Livorno estimated at 1,494.33 euros, as specified in the individual sales listings (it is recommended, however, to obtain an official calculation from the competent authority).
As provided by the Agreement dated 15/07/2013 between the Municipality of Livorno and Spil, these development charges will not be due if the garage is located 500 meters away from another property owned by the same winning bidder and is related to the needs of that property, in which case a scenario of relevance occurs.
The Seller may also certify the construction costs incurred to allow the winning bidder to request any deductions, if the legal requirements are met by law.
Easements: The connection road of the property to the public road is burdened by a right of passage in favor of neighboring private properties.
The property is leased with a monthly rent of 282.90 euros. The winning bidder will be required to pay the development charges to the Municipality of Livorno estimated at 1,494.33 euros, as specified in the individual sales listings (it is recommended, however, to obtain an official calculation from the competent authority).
As provided by the Agreement dated 15/07/2013 between the Municipality of Livorno and Spil, these development charges will not be due if the garage is located 500 meters away from another property owned by the same winning bidder and is related to the needs of that property, in which case a scenario of relevance occurs.
The Seller may also certify the construction costs incurred to allow the winning bidder to request any deductions, if the legal requirements are met by law.
Easements: The connection road of the property to the public road is burdened by a right of passage in favor of neighboring private properties.
- Data annuncio
- 27/05/2024
- Tipologia
- Garage
- Diritto
- Piena proprietà
- Quota
- 1/1
- Classificazione energetica
- Esente
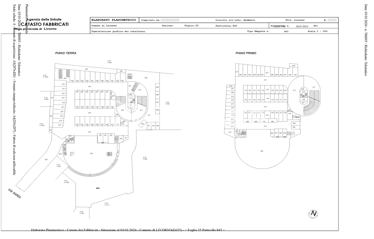
Tipo di catasto Fabbricati |
Categoria C6 Stalle, scuderie, rimesse, autorimesse (senza fine di lucro) |
Rendita - |
Foglio 25 |
Particella 843 |
Sub 635 |
Mappa e punti di interesse
Consulta la mappa e scopri cosa c’è nel raggio di 600 metri: potresti trovare i servizi che rendono questa proprietà perfetta per te
Cliccando sulle categorie della legenda puoi aggiungere o rimuovere i punti di interesse, per una consultazione più semplice e personalizzata