Codice
723
Immobile da riqualificare
Immobile da riqualificare
V. Ottavia Minore 03100 Frosinone (FR)
-
1473Superficie commerciale
-
plPiano
-
17Bagni
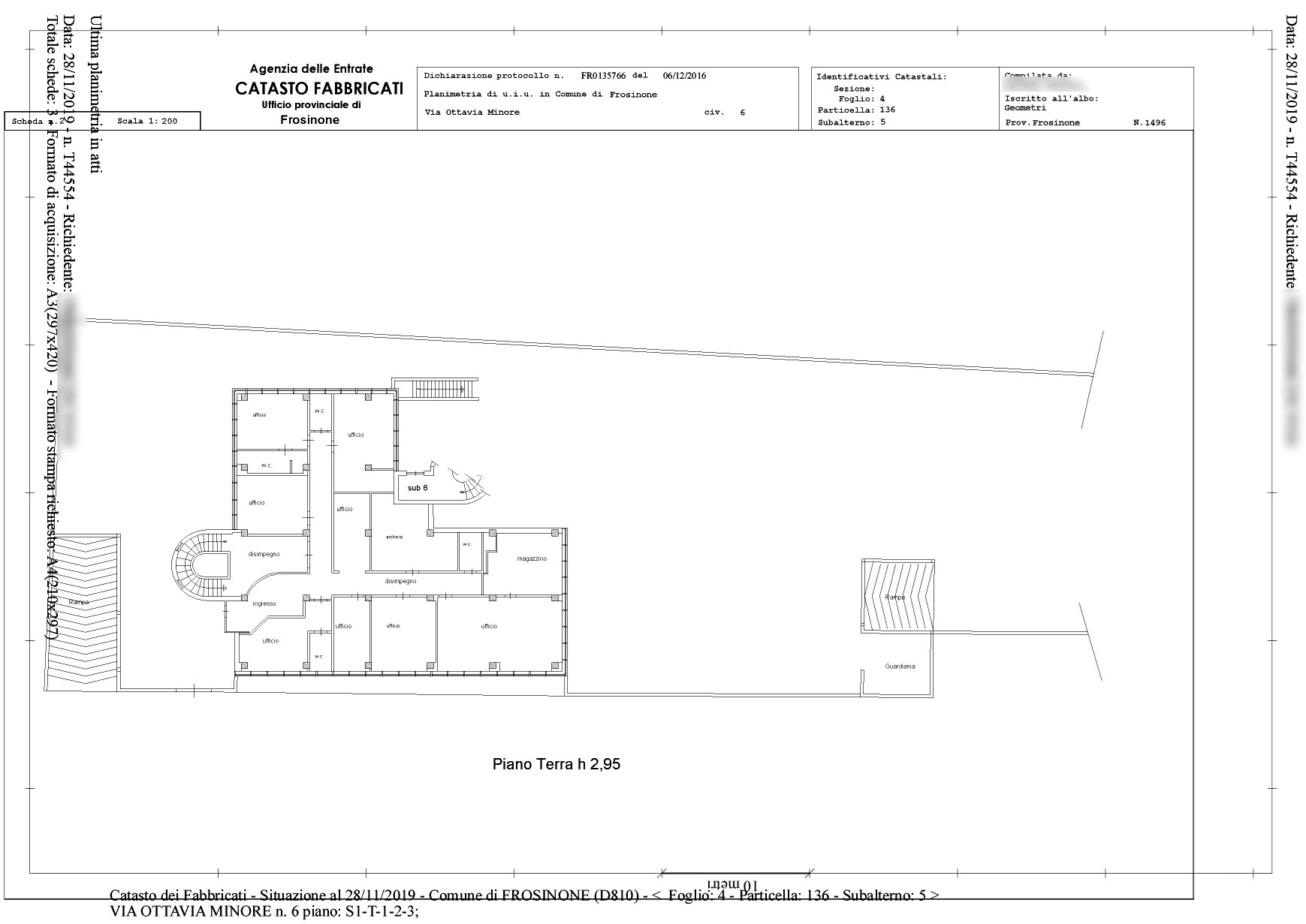
TECCHIENA CASTELLO: Ampio edificio indipendente libero su 4 lati e disposto su 4 livelli agibili che sviluppano una superficie complessiva di circa mq 1.470 mq, oltre a piano interrato adibito a autorimessa con doppio accesso carrabile, ed ampio spazio esterno recintato di circa mq 1.200.
L'immobile precedentemente adibito a caserma , offre oggi diverse opportunità di utilizzo e riqualificazione.
Un'ipotesi di cambio destinazione d'uso permetterebbe infatti di trasformarlo sia a destinazione residenziale sia commerciale, aumentandone esponenzialmente il valore anche grazie alla sua configurazione e alla posizione strategica.
L’immobile è situato in una zona semicentrale di Frosinone, in un'area urbana in espansione grazie a nuove edificazioni in edilizia convenzionata. La posizione strategica, a breve distanza dal centro commerciale e con tutti i principali servizi facilmente accessibili a piedi, aggiunge un notevole valore per chi cerca praticità e comodità.
Dal punto di vista delle dotazioni, l’immobile è fornito di riscaldamento autonomo a metano, con impianti sottotraccia che garantiscono un aspetto pulito e ordinato agli spazi interni. La proprietà è recintata con muratura e metallo, dispone di un alloggio per il portiere, un sistema di allarme/sicurezza e un cancello d’accesso automatico, caratteristiche che assicurano funzionalità e sicurezza.
In conclusione, l’immobile offre una buona combinazione di versatilità e strategica collocazione, ideale per chi desidera investire in una proprietà con potenziale sia residenziale che commerciale, nel cuore di una zona di Frosinone in piena crescita e trasformazione.
APE (CAT. A2):
Indice prestazione energetica: 322,2 kWh/mq anno
Indice prestazione energetica rinnovabile 0,00 kWh/mq annon.
protocollo Cod. Identificativo:20250115-060038-24903
APE (CAT. B1):
Indice prestazione energetica: 123,13 kWh/mq anno
Indice prestazione energetica rinnovabile 0,00 kWh/mq annon.
protocollo Cod. Identificativo:20250116-060038-25701
L'immobile precedentemente adibito a caserma , offre oggi diverse opportunità di utilizzo e riqualificazione.
Un'ipotesi di cambio destinazione d'uso permetterebbe infatti di trasformarlo sia a destinazione residenziale sia commerciale, aumentandone esponenzialmente il valore anche grazie alla sua configurazione e alla posizione strategica.
L’immobile è situato in una zona semicentrale di Frosinone, in un'area urbana in espansione grazie a nuove edificazioni in edilizia convenzionata. La posizione strategica, a breve distanza dal centro commerciale e con tutti i principali servizi facilmente accessibili a piedi, aggiunge un notevole valore per chi cerca praticità e comodità.
Dal punto di vista delle dotazioni, l’immobile è fornito di riscaldamento autonomo a metano, con impianti sottotraccia che garantiscono un aspetto pulito e ordinato agli spazi interni. La proprietà è recintata con muratura e metallo, dispone di un alloggio per il portiere, un sistema di allarme/sicurezza e un cancello d’accesso automatico, caratteristiche che assicurano funzionalità e sicurezza.
In conclusione, l’immobile offre una buona combinazione di versatilità e strategica collocazione, ideale per chi desidera investire in una proprietà con potenziale sia residenziale che commerciale, nel cuore di una zona di Frosinone in piena crescita e trasformazione.
APE (CAT. A2):
Indice prestazione energetica: 322,2 kWh/mq anno
Indice prestazione energetica rinnovabile 0,00 kWh/mq annon.
protocollo Cod. Identificativo:20250115-060038-24903
APE (CAT. B1):
Indice prestazione energetica: 123,13 kWh/mq anno
Indice prestazione energetica rinnovabile 0,00 kWh/mq annon.
protocollo Cod. Identificativo:20250116-060038-25701
TECCHIENA CASTLE: Large independent building with 4 sides and spread over 4 functional levels, with a total area of approximately 1,470 sqm, including a basement used as a garage with double driveway access, and a large fenced outdoor space of about 1,200 sqm.
The property, previously used as a barracks, now offers various opportunities for use and redevelopment.
A change in permitted use could transform it into both residential and commercial spaces, significantly increasing its value thanks to its layout and strategic location.
The property is located in a semi-central area of Frosinone, in an urban area that is expanding due to new developments in subsidized housing. The strategic position, a short distance from the shopping center and with all the main services easily accessible on foot, adds considerable value for those looking for convenience and comfort.
In terms of facilities, the property has independent gas heating, with underground systems that ensure a clean and tidy appearance to the interior spaces. The property is enclosed with masonry and metal, has accommodation for the caretaker, an alarm/security system, and an automatic access gate, features that ensure functionality and security.
In conclusion, the property offers a good combination of versatility and strategic location, ideal for those looking to invest in a property with both residential and commercial potential, in the heart of a growing and transforming area of Frosinone.
EPC (CAT. A2):
Energy performance index: 322.2 kWh/sqm per year
Renewable energy performance index 0.00 kWh/sqm per year
Identification code: 20250115-060038-24903
EPC (CAT. B1):
Energy performance index: 123.13 kWh/sqm per year
Renewable energy performance index 0.00 kWh/sqm per year
Identification code: 20250116-060038-25701
The property, previously used as a barracks, now offers various opportunities for use and redevelopment.
A change in permitted use could transform it into both residential and commercial spaces, significantly increasing its value thanks to its layout and strategic location.
The property is located in a semi-central area of Frosinone, in an urban area that is expanding due to new developments in subsidized housing. The strategic position, a short distance from the shopping center and with all the main services easily accessible on foot, adds considerable value for those looking for convenience and comfort.
In terms of facilities, the property has independent gas heating, with underground systems that ensure a clean and tidy appearance to the interior spaces. The property is enclosed with masonry and metal, has accommodation for the caretaker, an alarm/security system, and an automatic access gate, features that ensure functionality and security.
In conclusion, the property offers a good combination of versatility and strategic location, ideal for those looking to invest in a property with both residential and commercial potential, in the heart of a growing and transforming area of Frosinone.
EPC (CAT. A2):
Energy performance index: 322.2 kWh/sqm per year
Renewable energy performance index 0.00 kWh/sqm per year
Identification code: 20250115-060038-24903
EPC (CAT. B1):
Energy performance index: 123.13 kWh/sqm per year
Renewable energy performance index 0.00 kWh/sqm per year
Identification code: 20250116-060038-25701
CHÂTEAU TECCHIENA: Vaste bâtiment indépendant libre sur 4 côtés et disposé sur 4 niveaux habitables pour une surface totale d'environ 1 470 m², en plus d'un sous-sol utilisé comme garage avec double accès carrossable, et un grand espace extérieur clôturé d'environ 1 200 m².
L'immeuble était auparavant utilisé comme caserne et offre désormais différentes opportunités d'utilisation et de réhabilitation.
Une hypothèse de changement de destination d'usage permettrait en effet de le transformer à la fois en résidence et en activité commerciale, augmentant considérablement sa valeur grâce à sa configuration et à son emplacement stratégique.
L'immeuble est situé dans une zone semi-centrale de Frosinone, dans une zone urbaine en expansion grâce à de nouvelles constructions en logements conventionnés. Sa position stratégique, à courte distance du centre commercial et avec tous les principaux services facilement accessibles à pied, ajoute une grande valeur pour ceux qui recherchent la praticité et le confort.
En termes d'équipements, l'immeuble est doté de chauffage indépendant au gaz naturel, avec des installations encastrées garantissant un aspect propre et ordonné aux espaces intérieurs. La propriété est clôturée par des murs et du métal, dispose d'un logement pour le concierge, d'un système d'alarme/sécurité et d'un portail d'accès automatique, offrant fonctionnalité et sécurité.
En conclusion, l'immeuble offre une bonne combinaison de polyvalence et d'emplacement stratégique, idéale pour ceux qui souhaitent investir dans une propriété avec un potentiel résidentiel et commercial, au cœur d'une zone en pleine croissance et transformation à Frosinone.
Étiquette énergétique (CAT. A2):
Indice de performance énergétique: 322,2 kWh/m² par an
Indice de performance énergétique renouvelable 0,00 kWh/m² par an
Code d'identification du protocole: 20250115-060038-24903
Étiquette énergétique (CAT. B1):
Indice de performance énergétique: 123,13 kWh/m² par an
Indice de performance énergétique renouvelable 0,00 kWh/m² par an.
Code d'identification du protocole: 20250116-060038-25701
L'immeuble était auparavant utilisé comme caserne et offre désormais différentes opportunités d'utilisation et de réhabilitation.
Une hypothèse de changement de destination d'usage permettrait en effet de le transformer à la fois en résidence et en activité commerciale, augmentant considérablement sa valeur grâce à sa configuration et à son emplacement stratégique.
L'immeuble est situé dans une zone semi-centrale de Frosinone, dans une zone urbaine en expansion grâce à de nouvelles constructions en logements conventionnés. Sa position stratégique, à courte distance du centre commercial et avec tous les principaux services facilement accessibles à pied, ajoute une grande valeur pour ceux qui recherchent la praticité et le confort.
En termes d'équipements, l'immeuble est doté de chauffage indépendant au gaz naturel, avec des installations encastrées garantissant un aspect propre et ordonné aux espaces intérieurs. La propriété est clôturée par des murs et du métal, dispose d'un logement pour le concierge, d'un système d'alarme/sécurité et d'un portail d'accès automatique, offrant fonctionnalité et sécurité.
En conclusion, l'immeuble offre une bonne combinaison de polyvalence et d'emplacement stratégique, idéale pour ceux qui souhaitent investir dans une propriété avec un potentiel résidentiel et commercial, au cœur d'une zone en pleine croissance et transformation à Frosinone.
Étiquette énergétique (CAT. A2):
Indice de performance énergétique: 322,2 kWh/m² par an
Indice de performance énergétique renouvelable 0,00 kWh/m² par an
Code d'identification du protocole: 20250115-060038-24903
Étiquette énergétique (CAT. B1):
Indice de performance énergétique: 123,13 kWh/m² par an
Indice de performance énergétique renouvelable 0,00 kWh/m² par an.
Code d'identification du protocole: 20250116-060038-25701
SCHLOSS TECCHIENA: Geräumiges, freistehendes Gebäude auf 4 Seiten und auf 4 Ebenen, die eine Gesamtfläche von ca. 1.470 m² umfassen, sowie ein Untergeschoss, das als Garage mit doppeltem Zufahrtstor dient, und ein großer umzäunter Außenbereich von ca. 1.200 m².
Das Gebäude, das zuvor als Kaserne genutzt wurde, bietet heute verschiedene Nutzungsmöglichkeiten und Entwicklungspotenziale.
Ein hypothetischer Wechsel der Nutzungskategorie würde es ermöglichen, es sowohl in ein Wohn- als auch in ein Geschäftsgebäude umzuwandeln und seinen Wert aufgrund seiner Konfiguration und strategischen Lage erheblich zu steigern.
Die Immobilie befindet sich in einem halbzentralen Bereich von Frosinone, in einem städtischen Gebiet, das durch neue Gebäude im Rahmen des sozial geförderten Wohnungsbaus im Aufschwung ist. Die strategische Lage in unmittelbarer Nähe des Einkaufszentrums und mit allen wichtigen Dienstleistungen bequem zu Fuß erreichbar, bietet einen erheblichen Mehrwert für diejenigen, die Praktikabilität und Komfort suchen.
Hinsichtlich der Ausstattung verfügt die Immobilie über eine unabhängige Gasheizung, mit unterputzten Anlagen, die den Innenräumen ein sauberes und ordentliches Aussehen verleihen. Das Grundstück ist mit Mauerwerk und Metall umzäunt, verfügt über eine Wohnung für den Hausmeister, ein Alarmanlagen-/Sicherheitssystem und ein automatisches Einfahrtstor, Merkmale, die Funktionalität und Sicherheit gewährleisten.
Zusammenfassend bietet die Immobilie eine gute Kombination aus Vielseitigkeit und strategischer Lage, ideal für diejenigen, die in ein Objekt mit Potenzial sowohl im Wohn- als auch im Geschäftsbereich im Herzen eines aufstrebenden und sich verändernden Stadtteils von Frosinone investieren möchten.
Energieausweis (Kategorie A2):
Energieleistungskennzahl: 322,2 kWh/m² Jahr
Erneuerbare Energieleistungskennzahl: 0,00 kWh/m² Jahr
Identifikationscode: 20250115-060038-24903
Energieausweis (Kategorie B1):
Energieleistungskennzahl: 123,13 kWh/m² Jahr
Erneuerbare Energieleistungskennzahl: 0,00 kWh/m² Jahr
Identifikationscode: 20250116-060038-25701
Das Gebäude, das zuvor als Kaserne genutzt wurde, bietet heute verschiedene Nutzungsmöglichkeiten und Entwicklungspotenziale.
Ein hypothetischer Wechsel der Nutzungskategorie würde es ermöglichen, es sowohl in ein Wohn- als auch in ein Geschäftsgebäude umzuwandeln und seinen Wert aufgrund seiner Konfiguration und strategischen Lage erheblich zu steigern.
Die Immobilie befindet sich in einem halbzentralen Bereich von Frosinone, in einem städtischen Gebiet, das durch neue Gebäude im Rahmen des sozial geförderten Wohnungsbaus im Aufschwung ist. Die strategische Lage in unmittelbarer Nähe des Einkaufszentrums und mit allen wichtigen Dienstleistungen bequem zu Fuß erreichbar, bietet einen erheblichen Mehrwert für diejenigen, die Praktikabilität und Komfort suchen.
Hinsichtlich der Ausstattung verfügt die Immobilie über eine unabhängige Gasheizung, mit unterputzten Anlagen, die den Innenräumen ein sauberes und ordentliches Aussehen verleihen. Das Grundstück ist mit Mauerwerk und Metall umzäunt, verfügt über eine Wohnung für den Hausmeister, ein Alarmanlagen-/Sicherheitssystem und ein automatisches Einfahrtstor, Merkmale, die Funktionalität und Sicherheit gewährleisten.
Zusammenfassend bietet die Immobilie eine gute Kombination aus Vielseitigkeit und strategischer Lage, ideal für diejenigen, die in ein Objekt mit Potenzial sowohl im Wohn- als auch im Geschäftsbereich im Herzen eines aufstrebenden und sich verändernden Stadtteils von Frosinone investieren möchten.
Energieausweis (Kategorie A2):
Energieleistungskennzahl: 322,2 kWh/m² Jahr
Erneuerbare Energieleistungskennzahl: 0,00 kWh/m² Jahr
Identifikationscode: 20250115-060038-24903
Energieausweis (Kategorie B1):
Energieleistungskennzahl: 123,13 kWh/m² Jahr
Erneuerbare Energieleistungskennzahl: 0,00 kWh/m² Jahr
Identifikationscode: 20250116-060038-25701
特奇纳城堡:宽敞的独立建筑,四面环抱,共4层可使用,总面积约为1,470平方米,外加地下室用作双车道车库,以及约 1,200平方米的大型围栏外部空间。
房产以前被用作兵营,如今提供各种使用和再开发机会。
通过改变用途的假设,可以将其改建为住宅或商业用途,从而显著增加其价值,也得益于其配置和战略位置。
该房产位于弗罗西诺的半中心地带,位于一个由于新的建设项目而扩张的城市区域。战略位置靠近商业中心,所有主要服务设施都可以轻松步行抵达,为寻求便利和舒适的人们增添了巨大价值。
在设施方面,该房产配备有独立的天然气供暖系统,地下安装的设施确保室内空间清洁整洁。财产用墙体和金属围墙环绕,配有门卫住所、报警/安全系统和自动门,这些特点保证了功能性和安全性。
总之,该房产结合了多功能性和战略位置的优势,非常适合寻求在弗罗西诺一个不断增长和变化的区域内投资的人们,这里拥有潜力成为住宅和商业用途的理想物业。
能源性能认证 (A2 类别):
能源性能指数: 322.2 千瓦时/平方米 年
可再生能源性能指数 0.00 千瓦时/平方米 年。
协议识别代码:20250115-060038-24903
能源性能认证 (B1 类别):
能源性能指数: 123.13 千瓦时/平方米 年
可再生能源性能指数 0.00 千瓦时/平方米 年。
协议识别代码:20250116-060038-25701
房产以前被用作兵营,如今提供各种使用和再开发机会。
通过改变用途的假设,可以将其改建为住宅或商业用途,从而显著增加其价值,也得益于其配置和战略位置。
该房产位于弗罗西诺的半中心地带,位于一个由于新的建设项目而扩张的城市区域。战略位置靠近商业中心,所有主要服务设施都可以轻松步行抵达,为寻求便利和舒适的人们增添了巨大价值。
在设施方面,该房产配备有独立的天然气供暖系统,地下安装的设施确保室内空间清洁整洁。财产用墙体和金属围墙环绕,配有门卫住所、报警/安全系统和自动门,这些特点保证了功能性和安全性。
总之,该房产结合了多功能性和战略位置的优势,非常适合寻求在弗罗西诺一个不断增长和变化的区域内投资的人们,这里拥有潜力成为住宅和商业用途的理想物业。
能源性能认证 (A2 类别):
能源性能指数: 322.2 千瓦时/平方米 年
可再生能源性能指数 0.00 千瓦时/平方米 年。
协议识别代码:20250115-060038-24903
能源性能认证 (B1 类别):
能源性能指数: 123.13 千瓦时/平方米 年
可再生能源性能指数 0.00 千瓦时/平方米 年。
协议识别代码:20250116-060038-25701
ТЕКЧИЕНА КАСТЕЛЛО: Обширное автономное здание с четырьмя сторонами, расположенное на 4 жилых уровнях, общей площадью около 1470 кв.м, а также подвалом, используемым как гараж с двойным автомобильным подъездом, и большой огороженной внешней площадью около 1200 кв.м.
Недвижимость ранее использовалась в качестве казармы, сегодня предлагает различные возможности использования и реконструкции.
Изменение целевого назначения позволило бы превратить его как в жилую, так и коммерческую недвижимость, значительно увеличив его стоимость благодаря его конфигурации и стратегическому расположению.
Недвижимость находится в полусреднем районе Фрозиньоне, в городской застройке, расширяющейся за счет новых зданий в согласованной застройке. Стратегическое расположение в непосредственной близости от торгового центра и со всеми основными услугами, легко доступными пешком, придает немалую ценность тем, кто ценит удобство.
С точки зрения оборудования, недвижимость оборудована автономным газовым отоплением с системами скрытой проводки, обеспечивающими чистоту и порядок во внутренних помещениях. Собственность огорожена каменной и металлической оградой, имеет жилье для портье, систему сигнализации/безопасности и автоматическую воротную систему, обеспечивающие функциональность и безопасность.
В заключение, недвижимость предлагает хорошее сочетание гибкости и стратегического расположения, идеально подходящее для тех, кто хочет инвестировать в недвижимость с потенциалом как для жилых, так и коммерческих целей, в самом сердце региона Фрозиньоне, находящегося в стадии роста и преобразования.
Категория энергоэффективности A2:
Энергетическая производительность: 322,2 кВтч/кв.м в год
Обновляемая энергетическая производительность 0,00 кВтч/кв.м в год
Идентификационный код протокола: 20250115-060038-24903
Категория энергоэффективности B1:
Энергетическая производительность: 123,13 кВтч/кв.м в год
Обновляемая энергетическая производительность 0,00 кВтч/кв.м в год
Идентификационный код протокола: 20250116-060038-25701
Недвижимость ранее использовалась в качестве казармы, сегодня предлагает различные возможности использования и реконструкции.
Изменение целевого назначения позволило бы превратить его как в жилую, так и коммерческую недвижимость, значительно увеличив его стоимость благодаря его конфигурации и стратегическому расположению.
Недвижимость находится в полусреднем районе Фрозиньоне, в городской застройке, расширяющейся за счет новых зданий в согласованной застройке. Стратегическое расположение в непосредственной близости от торгового центра и со всеми основными услугами, легко доступными пешком, придает немалую ценность тем, кто ценит удобство.
С точки зрения оборудования, недвижимость оборудована автономным газовым отоплением с системами скрытой проводки, обеспечивающими чистоту и порядок во внутренних помещениях. Собственность огорожена каменной и металлической оградой, имеет жилье для портье, систему сигнализации/безопасности и автоматическую воротную систему, обеспечивающие функциональность и безопасность.
В заключение, недвижимость предлагает хорошее сочетание гибкости и стратегического расположения, идеально подходящее для тех, кто хочет инвестировать в недвижимость с потенциалом как для жилых, так и коммерческих целей, в самом сердце региона Фрозиньоне, находящегося в стадии роста и преобразования.
Категория энергоэффективности A2:
Энергетическая производительность: 322,2 кВтч/кв.м в год
Обновляемая энергетическая производительность 0,00 кВтч/кв.м в год
Идентификационный код протокола: 20250115-060038-24903
Категория энергоэффективности B1:
Энергетическая производительность: 123,13 кВтч/кв.м в год
Обновляемая энергетическая производительность 0,00 кВтч/кв.м в год
Идентификационный код протокола: 20250116-060038-25701
- Data annuncio
- 01/04/2026
- Tipologia
- Immobile da riqualificare
- Diritto
- Piena proprietà
- Quota
- 1/1
- Condizioni dell’immobile
- Da ristrutturare
- Stato occupazione
- Libero
- Camere da letto
- 16
- Balcone/Terrazzo
- Si
- Giardino
- 1200 mq
- Posto auto
- Coperto
- Classificazione energetica
- G
- Indice prestazione energetica
- 123,13 kWh/mq anno
- Codice identificativo
- 20250116-060038-25071
- Scadenza
- 16/01/2035
Tipo di catasto Fabbricati |
Categoria B1 Collegi e convitti; educandati, ricoveri, orfanotrofi, ospizi, conventi, seminari e caserme |
Rendita € 8.783,63 |
Tipo di catasto Fabbricati |
Categoria A2 Abitazioni di tipo civile |
Rendita € 888,31 |
Tipo di catasto Fabbricati |
Categoria F1 Area urbana |
Rendita - |
Tipo di catasto Fabbricati |
Categoria F1 Area urbana |
Rendita - |
Tipo di catasto Fabbricati |
Categoria B.C.n.C. Beni comuni non censibili |
Rendita - |
Mappa e punti di interesse
Consulta la mappa e scopri cosa c’è nel raggio di 600 metri: potresti trovare i servizi che rendono questa proprietà perfetta per te
Cliccando sulle categorie della legenda puoi aggiungere o rimuovere i punti di interesse, per una consultazione più semplice e personalizzata