Codice
412
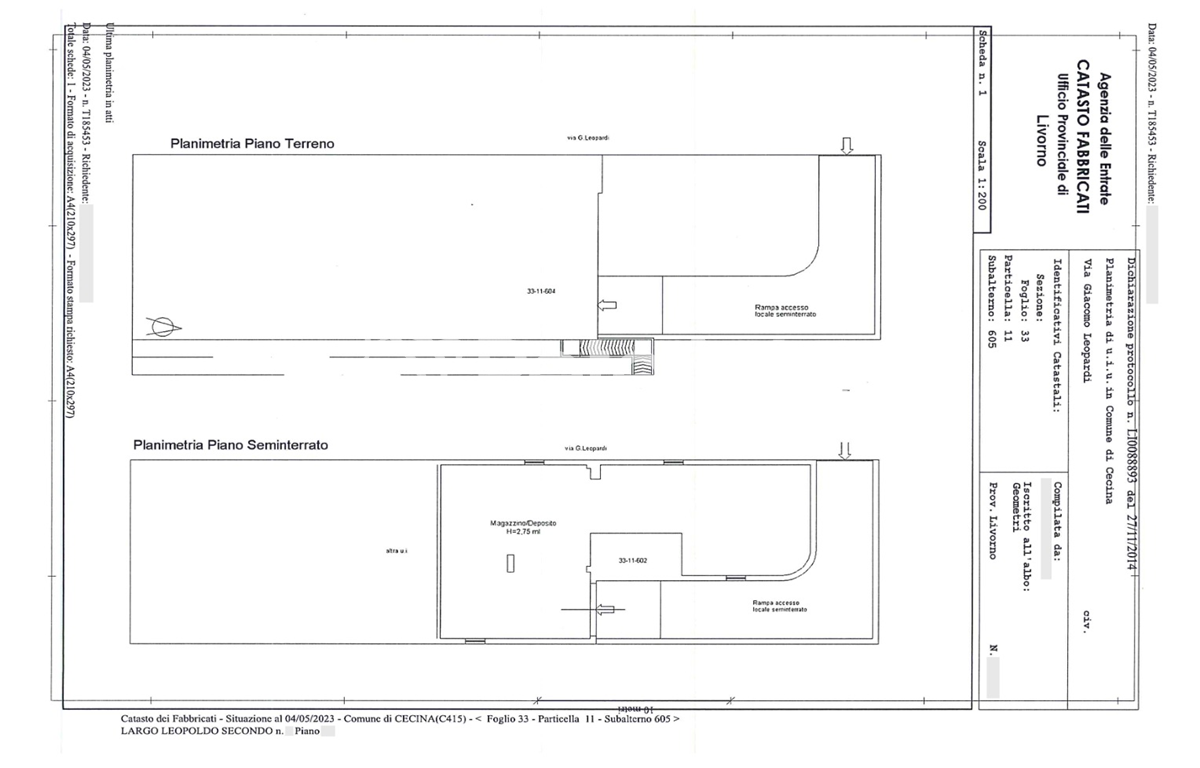
Magazzino
Magazzino
Via Giacomo Leopardi 57023 Cecina (LI)
-
159Superficie catastale
Magazzino di mq. catastali 159 al piano primo seminterrato, con accesso da scala comune.
Documentazione in fase di analisi.
APE:
Indice prestazione energetica: 93,12 kWh/mq anno
Indice prestazione energetica rinnovabile: 0,00 kWh/mq anno
Codice identificativo: 818843/2024
Documentazione in fase di analisi.
APE:
Indice prestazione energetica: 93,12 kWh/mq anno
Indice prestazione energetica rinnovabile: 0,00 kWh/mq anno
Codice identificativo: 818843/2024
Warehouse of 159 sqm on the first basement floor, with access from a common staircase.
Documentation is currently being analyzed.
Documentation is currently being analyzed.
- Data annuncio
- 29/04/2024
- Tipologia
- Magazzino
- Diritto
- Piena proprietà
- Quota
- 1/1
- Classificazione energetica
- G
- Scadenza
- 09/11/2034
Tipo di catasto Fabbricati |
Categoria C2 Magazzini e locali di deposito |
Rendita € 389,61 |
Foglio 33 |
Particella 11 |
Sub 605 |