Codice
853
Negozio
Negozio
Corso Vittorio Emanuele II 83100 Avellino (AV)
-
131Superficie catastale
-
plPiano
-
1Bagni
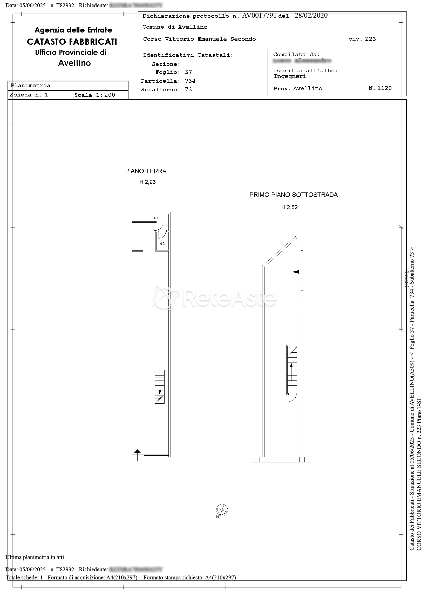
Immobile a destinazione commerciale (categoria C1) situato in uno degli edifici più prestigiosi di Corso Vittorio Emanuele, nel centro di Avellino. L’unità si sviluppa su due livelli per una superficie complessiva di 131 mq, con ambienti in ottimo stato e perfettamente conformi.
Al piano terra si trovano circa 84 mq, con spazi ben distribuiti e dotati di servizio igienico. Il piano sottostrada, di circa 66 mq, è accessibile internamente e offre un’utile superficie aggiuntiva per magazzino o altre funzioni di supporto. Il riscaldamento è autonomo e la pavimentazione è in piastrelle.
L’immobile è attualmente locato con contratto in essere fino a marzo 2031, il che rappresenta un’interessante opportunità di investimento a reddito già attivo.
Il locale si trova lungo Corso Vittorio Emanuele, asse centrale della città e punto di riferimento per il commercio, il passeggio e la vita cittadina. La zona è caratterizzata da un’elevata visibilità e un costante flusso pedonale, grazie alla presenza di uffici, negozi, bar, ristoranti e servizi. Il fabbricato che ospita l’immobile si distingue per la sua eleganza architettonica e per l’ottimo stato manutentivo, che contribuisce a valorizzare ulteriormente la posizione e l'immobile stesso.
Sebbene il Corso sia in gran parte pedonale, nelle immediate vicinanze sono disponibili diverse aree di parcheggio, sia su strada che in autorimesse private o silos multipiano. Tra le opzioni più comode si segnalano il parcheggio di Piazza Libertà, recentemente riqualificata, e le aree di sosta lungo Via Matteotti, Via Mancini e Via De Conciliis. Questo rende l’immobile facilmente accessibile anche per chi arriva in auto, migliorandone ulteriormente l’attrattiva commerciale.
la vendita in caso di acquisto da parte di società (B2B) sarà soggetta ad iva per opzione ai sensi dell’articolo. 17 DPR 633/72 trattandosi di immobili strumentali costruiti o ristrutturati da oltre cinque anni. L’acquirente registra la fattura in inversione contabile e paga imposte ipo catastali del 3+1 per cento sul valore di compravendita. Nel caso in cui l'acquisto venisse da parte di un privato (B2C) , la vendita andrà in esenzione iva ai sensi dell’art. 10 DPR 633/72 e l’acquirente dovrà pagare l’imposta di registro al 9%.
Al piano terra si trovano circa 84 mq, con spazi ben distribuiti e dotati di servizio igienico. Il piano sottostrada, di circa 66 mq, è accessibile internamente e offre un’utile superficie aggiuntiva per magazzino o altre funzioni di supporto. Il riscaldamento è autonomo e la pavimentazione è in piastrelle.
L’immobile è attualmente locato con contratto in essere fino a marzo 2031, il che rappresenta un’interessante opportunità di investimento a reddito già attivo.
Il locale si trova lungo Corso Vittorio Emanuele, asse centrale della città e punto di riferimento per il commercio, il passeggio e la vita cittadina. La zona è caratterizzata da un’elevata visibilità e un costante flusso pedonale, grazie alla presenza di uffici, negozi, bar, ristoranti e servizi. Il fabbricato che ospita l’immobile si distingue per la sua eleganza architettonica e per l’ottimo stato manutentivo, che contribuisce a valorizzare ulteriormente la posizione e l'immobile stesso.
Sebbene il Corso sia in gran parte pedonale, nelle immediate vicinanze sono disponibili diverse aree di parcheggio, sia su strada che in autorimesse private o silos multipiano. Tra le opzioni più comode si segnalano il parcheggio di Piazza Libertà, recentemente riqualificata, e le aree di sosta lungo Via Matteotti, Via Mancini e Via De Conciliis. Questo rende l’immobile facilmente accessibile anche per chi arriva in auto, migliorandone ulteriormente l’attrattiva commerciale.
la vendita in caso di acquisto da parte di società (B2B) sarà soggetta ad iva per opzione ai sensi dell’articolo. 17 DPR 633/72 trattandosi di immobili strumentali costruiti o ristrutturati da oltre cinque anni. L’acquirente registra la fattura in inversione contabile e paga imposte ipo catastali del 3+1 per cento sul valore di compravendita. Nel caso in cui l'acquisto venisse da parte di un privato (B2C) , la vendita andrà in esenzione iva ai sensi dell’art. 10 DPR 633/72 e l’acquirente dovrà pagare l’imposta di registro al 9%.
Commercial property (category C1) located in one of the most prestigious buildings on Corso Vittorio Emanuele, in the center of Avellino. The unit is spread over two levels with a total area of 131 sqm, featuring well-maintained and perfectly compliant spaces. On the ground floor, there are around 84 sqm, with well-distributed spaces and a bathroom. The basement floor, of approximately 66 sqm, is internally accessible and provides additional useful space for storage or other supporting functions. The heating is independent and the flooring is tiled. The property is currently leased with a contract in place until March 2031, representing an interesting income-generating investment opportunity. The premises are located along Corso Vittorio Emanuele, the city's central axis and a reference point for commerce, walking, and city life. The area is characterized by high visibility and a constant pedestrian flow, thanks to the presence of offices, shops, bars, restaurants, and services. The building housing the property stands out for its architectural elegance and excellent maintenance status, further enhancing the location and the property itself. Although Corso Vittorio Emanuele is largely pedestrian, there are several parking areas nearby, both on the street and in private garages or multipurpose silos. Among the most convenient options are the parking lot at Piazza Libertà, which has been recently renovated, and parking areas along Via Matteotti, Via Mancini, and Via De Conciliis. This makes the property easily accessible even for those arriving by car, further enhancing its commercial appeal.
Bien immobilier à usage commercial (catégorie C1) situé dans l'un des bâtiments les plus prestigieux de Corso Vittorio Emanuele, au centre d'Avellino. L'unité s'étend sur deux niveaux pour une superficie totale de 131 mètres carrés, avec des espaces en excellent état et parfaitement conformes. Au rez-de-chaussée, il y a environ 84 mètres carrés, avec des espaces bien répartis et équipés de sanitaires. Le sous-sol, d'environ 66 mètres carrés, est accessible depuis l'intérieur et offre une surface utile supplémentaire pour un entrepôt ou d'autres fonctions de support. Le chauffage est individuel et le sol est carrelé. La propriété est actuellement louée avec un contrat en cours jusqu'en mars 2031, ce qui représente une opportunité d'investissement intéressante déjà active. Le local est situé le long de Corso Vittorio Emanuele, l'axe central de la ville et point de référence pour le commerce, la promenade et la vie citadine. La zone se caractérise par une grande visibilité et un flux piétonnier constant, grâce à la présence de bureaux, magasins, bars, restaurants et services. Le bâtiment qui abrite la propriété se distingue par son élégance architecturale et par son excellent état d'entretien, qui contribue à valoriser davantage l'emplacement et la propriété. Bien que Corso soit en grande partie piétonnier, plusieurs zones de stationnement sont disponibles à proximité, que ce soit dans la rue, dans des parkings privés ou des silos de stationnement à plusieurs niveaux. Parmi les options les plus pratiques, on peut citer le parking de la Piazza Libertà, récemment réaménagé, ainsi que les zones de stationnement le long de Via Matteotti, Via Mancini et Via De Conciliis. Cela rend la propriété facilement accessible même pour ceux qui arrivent en voiture, améliorant encore son attrait commercial.
Gewerbliche Immobilie (Kategorie C1) in einem der prestigeträchtigsten Gebäude des Corso Vittorio Emanuele im Zentrum von Avellino gelegen. Die Einheit erstreckt sich über zwei Etagen mit einer Gesamtfläche von 131 qm, mit Räumen in ausgezeichnetem Zustand und perfekt konform. Im Erdgeschoss gibt es etwa 84 qm, mit gut verteilten Räumen und Badezimmer. Das Untergeschoss, ca. 66 qm groß, ist intern zugänglich und bietet eine nützliche zusätzliche Fläche für Lager oder andere unterstützende Funktionen. Die Heizung ist autonom und der Bodenbelag besteht aus Fliesen. Die Immobilie ist derzeit vermietet mit einem Vertrag bis März 2031, was eine interessante Investmentgelegenheit bietet, bereits mit aktiver Rendite. Der Standort des Lokals entlang des Corso Vittorio Emanuele, der Hauptachse der Stadt und ein Bezugspunkt für Handel, Spaziergänge und das Stadtleben, ermöglicht eine hohe Sichtbarkeit und einen konstanten Fußgängerverkehr aufgrund von Büros, Geschäften, Bars, Restaurants und Dienstleistungen. Das Gebäude, in dem sich die Immobilie befindet, zeichnet sich durch seine architektonische Eleganz und den ausgezeichneten Wartungszustand aus, der die Position und die Immobilie selbst weiter aufwertet. Obwohl der Corso größtenteils Fußgängerzone ist, gibt es in unmittelbarer Nähe verschiedene Parkmöglichkeiten, sowohl auf der Straße als auch in privaten Garagen oder Parkhäusern. Zu den bequemsten Optionen gehören der kürzlich renovierte Parkplatz Piazza Libertà und die Parkplätze entlang der Via Matteotti, Via Mancini und Via De Conciliis. Das macht die Immobilie auch für Autofahrer leicht erreichbar und verbessert damit zusätzlich ihre Attraktivität für den Handel.
坐落在阿韦利诺市中心维托里奥·埃马努埃莱大街上最具声望的建筑之一,具有商业用途(C1类别)的不动产。该单位分布在两层,总面积为131平方米,内部环境状态良好,完全符合规定。 一楼约84平方米,空间布局合理,设有卫生间。地下一层约66平方米,通过内部通道可到达,提供额外的仓储空间或其他支持功能。该单位设有独立供暖系统,地板铺设有瓷砖。 该不动产目前已签下租赁合同,有效期至2031年3月,这为已投入运作的出租投资提供了有趣的机会。 该场地位于维托里奥·埃马努埃莱大街,是城市的核心干道,商业活动、步行和市区生活的中心。该地区具有很高的能见度和持续的行人流量,因为这里聚集了办公室、商店、酒吧、餐厅和服务设施。承载该不动产的建筑以其优雅的建筑风格和优良的维护状况而著称,进一步增加了位置和不动产本身的价值。 尽管维托里奥·埃马努埃莱大街大部分区域为步行街,但附近有多个停车场供选择,包括路边停车场、私人地下车库或多层停车塔。其中,自由广场停车场和马特奥蒂大街、曼奇尼大街和德·孔奇利斯大街沿线的停车位是最便利的选项。这使得该不动产即使对开车而来的人也很容易到达,进一步增加了其商业吸引力。
Недвижимость коммерческого назначения (категория C1) расположена в одном из самых престижных зданий на Корсо Витторио Эмануэле, в центре города Авеллино. Единица состоит из двух уровней общей площадью 131 кв.м, с помещениями в отличном состоянии и полностью соответствующими требованиям. На первом этаже находится около 84 кв.м, с хорошо организованным пространством и санузлом. Подвальный этаж, примерно 66 кв.м, доступен внутри помещения и предоставляет дополнительное полезное пространство для склада или других вспомогательных функций. Отопление автономное, полы покрыты плиткой. В настоящее время недвижимость сдана в аренду с действующим договором до марта 2031 года, что представляет собой интересную инвестиционную возможность с уже действующим доходом. Помещение расположено на Корсо Витторио Эмануэле, главной торговой улице города и центральной точке для жизни, пешеходных прогулок и торговли. Район характеризуется высокой видимостью и постоянным пешеходным потоком благодаря наличию офисов, магазинов, баров, ресторанов и услуг. Здание, в котором расположена недвижимость, отличается своей архитектурной элегантностью и отличным состоянием, что дополнительно подчеркивает привлекательность расположения и самой недвижимости. Хотя большая часть Корсо является пешеходной зоной, в непосредственной близости имеется несколько парковочных зон, как на улицах, так и в частных гаражах или многоэтажных паркингах. Среди наиболее удобных вариантов стоят парковка на площади Либертà, недавно отреставрированная, и парковочные места вдоль улицы Маттеотти, Манчини и Де Кончилиис. Это делает недвижимость легко доступной даже для тех, кто приезжает на автомобиле, дополнительно увеличивая ее коммерческую привлекательность.
- Data annuncio
- 24/06/2025
- Tipologia
- Negozio
- Diritto
- Piena proprietà
- Anno di costruzione
- Dal 1970 al 1979
- Quota
- 1/1
- Stato occupazione
- Locato
- Tipo contratto
- Commerciale 6+6
- Canone locazione
- € 36.000 /Anno
- Scadenza contratto locazione
- 30/04/2031
- Riscaldamento
- Indipendente
- Classificazione energetica
- D
- Indice prestazione energetica
- 95,17 kWh/mq anno
- Codice identificativo
- f.37 p.lla 734 sub 73
- Scadenza
- 30/06/2030
Tipo di catasto Fabbricati |
Categoria C1 Negozi e botteghe |
Rendita € 3.066,93 |