Codice
409
Negozio
Negozio
Via Giacomo Leopardi 57023 Cecina (LI)
-
947Superficie catastale
1 - Fondo connesso all’attività di rifornimento carburanti e destinato alla rivendita di prodotti per auto e moto di mq. 26.
2 - Fondo connesso all’attività di rifornimento carburanti e destinato ad officina meccanica per riparazioni auto. È costituito da un locale principale su fronte strada e da una porzione tergale destinata a magazzino, oltre a due servizi igienici con accesso dall’esterno. Le pavimentazioni ed i rivestimenti dei servizi igienici sono in ceramica. Oltre piazzale antistante di metri quadri 875.
Stato di occupazione: è in essere regolare contratto di locazione con durata novennale decorrente dall’11/11/2012, con prossima scadenza al 10/11/2030, e canone annuo pari ad euro 44.469,73. Il conduttore ha diritto di prelazione in caso di vendita.
Diritto di passaggio: agli immobili ed alle aree attigue al piazzale della stazione carburanti è riconosciuto il diritto di libero passaggio sullo stesso al fine di consentire il collegamento alla pubblica via.
Spese condominiali pari ad Euro 655,00 annue come da consuntivo del 2024.
Documentazione in fase di analisi. 2 - Fondo connesso all’attività di rifornimento carburanti e destinato ad officina meccanica per riparazioni auto. È costituito da un locale principale su fronte strada e da una porzione tergale destinata a magazzino, oltre a due servizi igienici con accesso dall’esterno. Le pavimentazioni ed i rivestimenti dei servizi igienici sono in ceramica. Oltre piazzale antistante di metri quadri 875.
Stato di occupazione: è in essere regolare contratto di locazione con durata novennale decorrente dall’11/11/2012, con prossima scadenza al 10/11/2030, e canone annuo pari ad euro 44.469,73. Il conduttore ha diritto di prelazione in caso di vendita.
Diritto di passaggio: agli immobili ed alle aree attigue al piazzale della stazione carburanti è riconosciuto il diritto di libero passaggio sullo stesso al fine di consentire il collegamento alla pubblica via.
Spese condominiali pari ad Euro 655,00 annue come da consuntivo del 2024.
APE:
Indice prestazione energetica: 358,62 kWh/mw anno
Indie prestazione energetica rinnovabile: 0,00 kWh/mw anno
Codice identificativo: 818836/2024
1 - Property connected to the fuel supply activity and intended for the sale of products for cars and motorcycles with an area of 26 square meters.
2 - Property connected to the fuel supply activity and intended for a mechanical workshop for car repairs. It consists of a main room facing the street and a rear portion intended as a warehouse, in addition to two bathrooms with external access.
The floorings and the coverings of the bathrooms are in ceramic. Also includes a front square measuring 875 square meters.
Occupancy status: there is a regular lease agreement in place with a nine-year duration starting from 11/11/2012, with the next expiration on 10/11/2030, and an annual rent of 44,469.73 euros. The tenant has a right of first refusal in case of sale.
Right of way: the properties adjacent to the fuel station square are granted the right of unrestricted passage for the purpose of connecting to the public road.
Documentation is currently under analysis.
2 - Property connected to the fuel supply activity and intended for a mechanical workshop for car repairs. It consists of a main room facing the street and a rear portion intended as a warehouse, in addition to two bathrooms with external access.
The floorings and the coverings of the bathrooms are in ceramic. Also includes a front square measuring 875 square meters.
Occupancy status: there is a regular lease agreement in place with a nine-year duration starting from 11/11/2012, with the next expiration on 10/11/2030, and an annual rent of 44,469.73 euros. The tenant has a right of first refusal in case of sale.
Right of way: the properties adjacent to the fuel station square are granted the right of unrestricted passage for the purpose of connecting to the public road.
Documentation is currently under analysis.
1 - Local connecté à l'activité de distribution de carburant et dédié à la vente de produits pour voitures et motos de 26 mètres carrés.
2 - Local connecté à l'activité de distribution de carburant et destiné à un atelier mécanique pour la réparation de voitures. Il est composé d'une salle principale en façade de rue et d'une partie arrière destinée à l'entrepôt, ainsi que de deux toilettes avec accès depuis l'extérieur. Les revêtements de sol et de mur des toilettes sont en céramique.
En plus, il dispose d'une cour avant de 875 mètres carrés.
État d'occupation : il y a un contrat de location en vigueur d'une durée de neuf ans à partir du 11/11/2012, avec un terme prévu pour le 10/11/2030, et un loyer annuel de 44 469,73 euros. Le locataire a un droit de préemption en cas de vente. Droit de passage : les propriétés et les zones adjacentes à la cour de la station-service ont le droit de passage libre sur celle-ci afin de permettre la connexion à la voie publique.
La documentation est en phase d'analyse. PEB : Indice de performance énergétique : 358,62 kWh/m²/an Indice de performance énergétique renouvelable : 0,00 kWh/m²/an Code d'identification : 818836/2024
2 - Local connecté à l'activité de distribution de carburant et destiné à un atelier mécanique pour la réparation de voitures. Il est composé d'une salle principale en façade de rue et d'une partie arrière destinée à l'entrepôt, ainsi que de deux toilettes avec accès depuis l'extérieur. Les revêtements de sol et de mur des toilettes sont en céramique.
En plus, il dispose d'une cour avant de 875 mètres carrés.
État d'occupation : il y a un contrat de location en vigueur d'une durée de neuf ans à partir du 11/11/2012, avec un terme prévu pour le 10/11/2030, et un loyer annuel de 44 469,73 euros. Le locataire a un droit de préemption en cas de vente. Droit de passage : les propriétés et les zones adjacentes à la cour de la station-service ont le droit de passage libre sur celle-ci afin de permettre la connexion à la voie publique.
La documentation est en phase d'analyse. PEB : Indice de performance énergétique : 358,62 kWh/m²/an Indice de performance énergétique renouvelable : 0,00 kWh/m²/an Code d'identification : 818836/2024
1 - Grundstück im Zusammenhang mit der Treibstoffversorgungstätigkeit und zur Verkauf von Auto- und Motorradprodukten von 26 Quadratmetern.
2 - Grundstück im Zusammenhang mit der Treibstoffversorgungstätigkeit und für eine Autowerkstatt zur Reparatur von Autos. Es besteht aus einem Hauptlokal an der Straße und einem hinteren Teil, der als Lager genutzt wird, sowie zwei Toiletten mit Zugang von außen. Die Fußböden und Verkleidungen der Toiletten sind aus Keramik. Dazu gehört ein Vorplatz von 875 Quadratmetern. Belegungsstatus: Es besteht ein regulärer Mietvertrag mit einer Laufzeit von neun Jahren ab dem 11.11.2012, mit einem nächsten Ablaufdatum am 10.11.2030, und einer jährlichen Miete von 44.469,73 Euro.
Der Mieter hat ein Vorkaufsrecht im Falle eines Verkaufs. Durchgangsrecht: An den Gebäuden und Flächen neben dem Tankstellenvorplatz ist das Recht auf freien Zugang eingeräumt, um die Verbindung zur öffentlichen Straße zu ermöglichen. Die Dokumentation befindet sich in der Analysephase.
Energieausweis: Energieeffizienzindex: 358,62 kWh/m² pro Jahr Erneuerbarer Energieeffizienzindex: 0,00 kWh/m² pro Jahr Identifikationscode: 818836/2024
2 - Grundstück im Zusammenhang mit der Treibstoffversorgungstätigkeit und für eine Autowerkstatt zur Reparatur von Autos. Es besteht aus einem Hauptlokal an der Straße und einem hinteren Teil, der als Lager genutzt wird, sowie zwei Toiletten mit Zugang von außen. Die Fußböden und Verkleidungen der Toiletten sind aus Keramik. Dazu gehört ein Vorplatz von 875 Quadratmetern. Belegungsstatus: Es besteht ein regulärer Mietvertrag mit einer Laufzeit von neun Jahren ab dem 11.11.2012, mit einem nächsten Ablaufdatum am 10.11.2030, und einer jährlichen Miete von 44.469,73 Euro.
Der Mieter hat ein Vorkaufsrecht im Falle eines Verkaufs. Durchgangsrecht: An den Gebäuden und Flächen neben dem Tankstellenvorplatz ist das Recht auf freien Zugang eingeräumt, um die Verbindung zur öffentlichen Straße zu ermöglichen. Die Dokumentation befindet sich in der Analysephase.
Energieausweis: Energieeffizienzindex: 358,62 kWh/m² pro Jahr Erneuerbarer Energieeffizienzindex: 0,00 kWh/m² pro Jahr Identifikationscode: 818836/2024
1 - 与供应燃油业务相关的基金,用于销售汽车和摩托车产品,面积为26平方米。2 - 与供应燃油业务相关的基金,用于汽车维修车间。它由一间面向街道的主要空间和一部分后方用作仓库组成,还有两个有外部通道的卫生间。卫生间的地板和墙壁都是陶瓷的。此外,还有面积为875平方米的前场。就业状况:已签订一份为期9年,自2012年11月11日起到2030年11月10日到期的租赁合同,年租金为44,469.73欧元。承租方有优先购买权。通行权:与加油站前场相邻的房产和区域享有通过前场自由通行的权利,以连接到公共道路。文件正在分析阶段。能源绩效指数:358.62千瓦时/平方米年度。可再生能源绩效指数:0.00千瓦时/平方米年度。标识代码:818836/2024
1 - Объект, связанный с деятельностью по поставке топлива и предназначенный для продажи товаров для автомобилей и мотоциклов, площадью 26 кв. м. 2 - Объект, связанный с деятельностью по поставке топлива и предназначенный для автомеханического цеха для ремонта автомобилей. Состоит из основного помещения на улице и задней части, предназначенной для склада, а также двух туалетов с доступом снаружи. Пол и облицовка туалетов выполнены из керамики. Также имеется передний площадь в размере 875 кв. м. Статус занятости: имеется действующий договор аренды сроком на девять лет, начиная с 11/11/2012 г., со следующим окончанием 10/11/2030 г., и ежегодная арендная плата в размере 44 469,73 евро. Арендатор имеет предпочтительное право на покупку в случае продажи. Право прохода: зданиям и прилегающим участкам площадки автозаправочной станции предоставляется свободное право прохода для обеспечения соединения с публичным путем. Документы находятся на стадии анализа. Сертификат энергетической эффективности: Индекс энергетической эффективности: 358,62 кВтч/м² год Индекс возобновляемой энергии: 0,00 кВтч/м² год Идентификационный код: 818836/2024
- Data annuncio
- 29/04/2024
- Tipologia
- Negozio
- Diritto
- Piena proprietà
- Quota
- 1/1
- Condizioni dell’immobile
- Buono stato
- Spese condominiali
- € 655 /Anno
- Stato occupazione
- Locato
- Canone locazione
- € 44.470 /Anno
- Scadenza contratto locazione
- 10/11/2030
- Classificazione energetica
- F
- Scadenza
- 09/11/2034
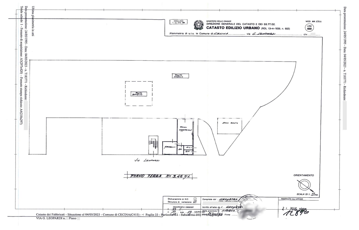
Tipo di catasto Fabbricati |
Categoria C1 Negozi e botteghe |
Rendita € 1.186,20 |
Foglio 33 |
Particella 11 |
Sub 2 |
Tipo di catasto Fabbricati |
Categoria C1 Negozi e botteghe |
Rendita € 2.529,19 |
Foglio 33 |
Particella 11 |
Sub 13 |