Codice
860
Palazzo storico, Stabile
Palazzo storico, Stabile
Localita' Camprena 52011 Bibbiena (AR)
-
plPiano
In vendita complesso immobiliare costituito dall'ex Villa Pallini con ampio giardino e vari annessi.
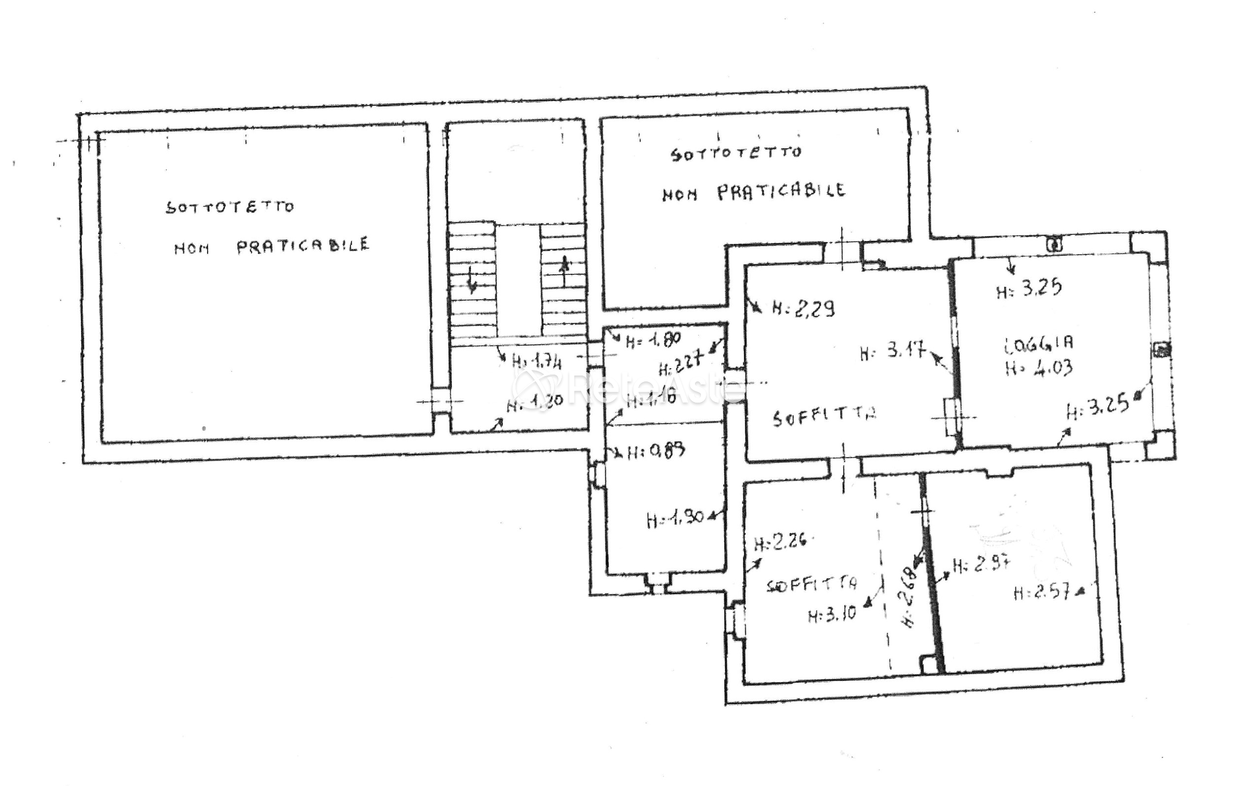
L'edificio articolato su quattro livelli collegati da ampia scala interna ben illuminata da finestre con antichi vetri colorati, è così composto:
L'edificio articolato su quattro livelli collegati da ampia scala interna ben illuminata da finestre con antichi vetri colorati, è così composto:
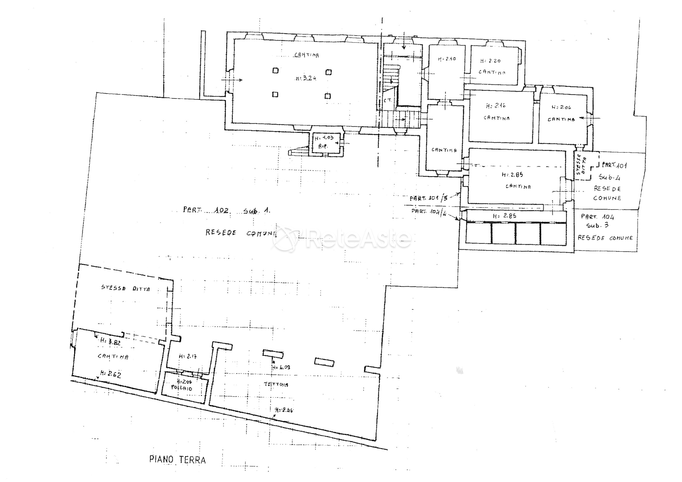
- piano terra: locali di servizio, depositi e una vecchia tinaia;
- primo e secondo piano: cucina, camere da letto e bagni
- terzo piano: soffitte ed un'altana dalla quale si gode una splendida vista sulle campagne e le colline circostanti.
La proprietà mantiene alcuni elementi di pregio, come i camini in alcuni locali, un soffitto a cassettoni in legno e un bagno con originali ceramiche a mosaico risalenti ai primi del Novecento. Accanto alla villa, si trova un ex seccatoio in muratura e mattoni rossi, affacciato sulla strada.
La villa ha uno stile che unisce tratti del primo Novecento a richiami rinascimentali, come le bugne in pietra d'angolo e un'ampia altana. L'intero complesso è circondato da una recinzione che sul fronte strada è in pietra e ferro, mentre sul retro e verso il fiume è una semplice rete metallica. L'ingresso principale è caratterizzato da un cancello in ferro a due ante, sostenuto da due pilastri in pietra squadrati e da un cancello pedonale più piccolo che introduce a un ampio giardino sviluppato su tre lati dell'edificio,
La parte posteriore della villa presenta segni di degrado dovuti alla mancata manutenzione e all'umidità che ha compromesso l'intonaco.
La località di Camprena è una frazione del comune di Bibbiena, situato in provincia di Arezzo, polo industriale e artigianale più importante del Casentino. L'area è caratterizzata da un suggestivo paesaggio collinare e fluviale, dominato dalla natura del Parco Nazionale delle Foreste Casentinesi, Monte Falterona e Campigna. La vallata del Casentino è un'area di interesse turistico, famosa per i suoi percorsi escursionistici, la ricchezza della sua flora e fauna e le tradizioni artigianali.
Il complesso immobiliare presenta un elevato potenziale di sviluppo: può essere trasformato in una residenza di prestigio, una struttura ricettiva o un complesso polifunzionale.
La villa necessita di un importante intervento di restauro conservativo, sia esterno che interno, volto a riorganizzare gli spazi esistenti e a valorizzare gli elementi di pregio, come il soffitto a cassettoni, i camini e il bagno con raffinate ceramiche a mosaico. Gli annessi, in particolare l’ex seccatoio e le stalle, offrono interessanti possibilità di recupero e possono essere trasformati in una dependance, uno studio o un ambiente dedicato al tempo libero.
Il centro di Bibbiena dista circa 3 km, raggiungibile in auto o con autobus locali. La stazione ferroviaria di Bibbiena dista circa 4 km, con collegamenti verso Arezzo e Firenze.
Il centro di Bibbiena dista circa 3 km, raggiungibile in auto o con autobus locali. La stazione ferroviaria di Bibbiena dista circa 4 km, con collegamenti verso Arezzo e Firenze.
For sale, a real estate complex consisting of the former Villa Pallini with a large garden and various outbuildings. The interior of the villa, which spans four levels connected by a wide internal staircase in stone.
On the ground floor, there are service rooms, storage areas, and an old wine cellar, while on the first and second floors are the kitchen, bedrooms, and bathrooms, and the fourth level is characterized by attics and a small tower from which the view extends over the surrounding countryside and hills.
The property retains some valuable elements, such as fireplaces in some rooms, a coffered wooden ceiling, and a bathroom with original mosaic ceramics from the early 20th century. The large windows in the stairwell, some with stained glass, provide good lighting. Adjacent to the villa, a former brick and red brick drying shed overlooks the street.
The villa has a style that combines elements of the early 20th century with Renaissance influences, such as the stone corner blocks and a large raised terrace. It is surrounded by a fence made of stone and iron facing the street, while at the back and towards the river, there is a simple metal fence. The main entrance, characterized by a wrought iron double gate supported by two square stone pillars, leads to a garden that surrounds the villa on three sides. There is also a smaller pedestrian gate. The back of the villa shows signs of deterioration due to lack of maintenance, such as the deteriorating balcony columns and moisture damage to the plaster. The locality of Camprena is a hamlet of the municipality of Bibbiena, located in the province of Arezzo, in the heart of Casentino. This area is characterized by a hilly and river landscape, dominated by the nature of the National Park of the Casentino Forests, Monte Falterona, and Campigna.
The Casentino valley is an area of tourist interest, famous for its hiking trails, the richness of its flora and fauna, and craft traditions. The real estate complex has a high development potential: it can be transformed into a luxury residence, a hospitality structure, or a multifunctional complex. External interventions aim at a conservative restoration of the villa, addressing degradation and restoring historical elements. Inside, spaces can be modernized while preserving valuable details such as the coffered ceiling, fireplaces, and the bathroom with mosaic ceramics.
The outbuildings, especially the former drying shed, offer the opportunity to be converted into a guesthouse, a studio, or a recreational space.
On the ground floor, there are service rooms, storage areas, and an old wine cellar, while on the first and second floors are the kitchen, bedrooms, and bathrooms, and the fourth level is characterized by attics and a small tower from which the view extends over the surrounding countryside and hills.
The property retains some valuable elements, such as fireplaces in some rooms, a coffered wooden ceiling, and a bathroom with original mosaic ceramics from the early 20th century. The large windows in the stairwell, some with stained glass, provide good lighting. Adjacent to the villa, a former brick and red brick drying shed overlooks the street.
The villa has a style that combines elements of the early 20th century with Renaissance influences, such as the stone corner blocks and a large raised terrace. It is surrounded by a fence made of stone and iron facing the street, while at the back and towards the river, there is a simple metal fence. The main entrance, characterized by a wrought iron double gate supported by two square stone pillars, leads to a garden that surrounds the villa on three sides. There is also a smaller pedestrian gate. The back of the villa shows signs of deterioration due to lack of maintenance, such as the deteriorating balcony columns and moisture damage to the plaster. The locality of Camprena is a hamlet of the municipality of Bibbiena, located in the province of Arezzo, in the heart of Casentino. This area is characterized by a hilly and river landscape, dominated by the nature of the National Park of the Casentino Forests, Monte Falterona, and Campigna.
The Casentino valley is an area of tourist interest, famous for its hiking trails, the richness of its flora and fauna, and craft traditions. The real estate complex has a high development potential: it can be transformed into a luxury residence, a hospitality structure, or a multifunctional complex. External interventions aim at a conservative restoration of the villa, addressing degradation and restoring historical elements. Inside, spaces can be modernized while preserving valuable details such as the coffered ceiling, fireplaces, and the bathroom with mosaic ceramics.
The outbuildings, especially the former drying shed, offer the opportunity to be converted into a guesthouse, a studio, or a recreational space.
À vendre complexe immobilier constitué de l'ancienne Villa Pallini avec grand jardin et diverses dépendances. L'intérieur de la villa, qui s'étend sur quatre niveaux, est relié par un grand escalier intérieur en pierre. Au rez-de-chaussée se trouvent des locaux de service, des entrepôts et une ancienne cave, aux premier et deuxième étages se trouvent la cuisine, les chambres et les salles de bains alors que le quatrième niveau est caractérisé par des greniers et une petite tour offrant une vue sur la campagne environnante.
La propriété conserve certains éléments de valeur, tels que des cheminées dans certaines pièces, un plafond à caissons en bois et une salle de bains avec des carreaux originaux en mosaïque du début du XXe siècle. Les grandes fenêtres dans le hall d'escalier, certaines avec des vitraux colorés, garantissent une bonne luminosité. Adjacent à la villa, un ancien séchoir en maçonnerie et briques rouges donne sur la rue. La villa a un style qui allie des éléments du début du XXe siècle à des rappels de la Renaissance, comme les bossages en pierre d'angle et une grande terrasse.
Elle est entourée d'une clôture en pierre et en fer sur la façade, tandis que à l'arrière et vers la rivière, il y a simplement une clôture métallique. L'entrée principale, caractérisée par un portail en fer à deux battants soutenu par deux piliers en pierre carrés, mène à un jardin entourant la villa sur trois côtés. Il y a également un petit portail piéton. L'arrière de la villa montre des signes de dégradation dus au manque d'entretien, comme la détérioration des colonnes des balcons et l'humidité ayant endommagé le plâtre.
Le hameau de Camprena est une fraction de la commune de Bibbiena, situé dans la province d'Arezzo, au cœur du Casentino. Cette zone est caractérisée par un paysage vallonné et fluvial, dominé par la nature du Parc National des Forêts Casentinesi, Monte Falterona et Campigna. La vallée du Casentino est une région d'intérêt touristique, célèbre pour ses sentiers de randonnée, la richesse de sa flore et de sa faune, ainsi que ses traditions artisanales. Le complexe immobilier présente un fort potentiel de développement : il peut être transformé en une résidence de prestige, une structure d'accueil ou un complexe multifonctionnel.
Les interventions extérieures visent à une restauration conservatrice de la villa, en corrigeant la dégradation et en restaurant les éléments historiques. À l'intérieur, les espaces peuvent être modernisés tout en préservant des détails de valeur tels que le plafond à caissons, les cheminées et la salle de bains avec les carreaux en mosaïque. Les dépendances, en particulier l'ancien séchoir, offrent la possibilité d'être converties en une dépendance, un studio ou un espace récréatif.
La propriété conserve certains éléments de valeur, tels que des cheminées dans certaines pièces, un plafond à caissons en bois et une salle de bains avec des carreaux originaux en mosaïque du début du XXe siècle. Les grandes fenêtres dans le hall d'escalier, certaines avec des vitraux colorés, garantissent une bonne luminosité. Adjacent à la villa, un ancien séchoir en maçonnerie et briques rouges donne sur la rue. La villa a un style qui allie des éléments du début du XXe siècle à des rappels de la Renaissance, comme les bossages en pierre d'angle et une grande terrasse.
Elle est entourée d'une clôture en pierre et en fer sur la façade, tandis que à l'arrière et vers la rivière, il y a simplement une clôture métallique. L'entrée principale, caractérisée par un portail en fer à deux battants soutenu par deux piliers en pierre carrés, mène à un jardin entourant la villa sur trois côtés. Il y a également un petit portail piéton. L'arrière de la villa montre des signes de dégradation dus au manque d'entretien, comme la détérioration des colonnes des balcons et l'humidité ayant endommagé le plâtre.
Le hameau de Camprena est une fraction de la commune de Bibbiena, situé dans la province d'Arezzo, au cœur du Casentino. Cette zone est caractérisée par un paysage vallonné et fluvial, dominé par la nature du Parc National des Forêts Casentinesi, Monte Falterona et Campigna. La vallée du Casentino est une région d'intérêt touristique, célèbre pour ses sentiers de randonnée, la richesse de sa flore et de sa faune, ainsi que ses traditions artisanales. Le complexe immobilier présente un fort potentiel de développement : il peut être transformé en une résidence de prestige, une structure d'accueil ou un complexe multifonctionnel.
Les interventions extérieures visent à une restauration conservatrice de la villa, en corrigeant la dégradation et en restaurant les éléments historiques. À l'intérieur, les espaces peuvent être modernisés tout en préservant des détails de valeur tels que le plafond à caissons, les cheminées et la salle de bains avec les carreaux en mosaïque. Les dépendances, en particulier l'ancien séchoir, offrent la possibilité d'être converties en une dépendance, un studio ou un espace récréatif.
Zum Verkauf steht ein Immobilienkomplex, bestehend aus der ehemaligen Villa Pallini mit einem großen Garten und verschiedenen Nebengebäuden.
Das Innere der Villa erstreckt sich über vier Ebenen, die durch eine große interne Steintreppe verbunden sind. Im Erdgeschoss befinden sich Servicebereiche, Lagerräume und ein alter Weinkeller, auf den ersten und zweiten Etagen befinden sich die Küche, Schlafzimmer und Bäder, während die vierte Ebene Dachböden und einen Turm charakterisiert, von dem aus der Blick über die umliegenden Landschaften und Hügel reicht.
Das Anwesen bewahrt einige edle Elemente wie Kamine in einigen Zimmern, eine Decke mit Holzdecken und ein Bad mit originalen Mosaikfliesen aus den frühen 1900er Jahren. Die großen Fenster im Treppenhaus, einige mit farbigen Glasfenstern, garantieren eine gute Beleuchtung. Neben der Villa befindet sich ein ehemaliges Trocknungshaus aus Ziegelsteinen und roten Ziegeln, das zur Straße hin gelegen ist. Die Villa vereint Elemente des frühen 20. Jahrhunderts mit Renaissance-Anspielungen, wie Ecksteinverkleidungen und einen großen Altan. Sie ist von einem Zaun umgeben, der zur Straße hin aus Stein und Eisen besteht, während auf der Rückseite und zum Fluss hin ein einfacher Metallzaun steht. Der Haupteingang, gekennzeichnet durch ein zweiflügeliges Eisentor, das von zwei quadratischen Steinsäulen getragen wird, führt zu einem Garten, der die Villa auf drei Seiten umgibt. Es gibt auch ein kleineres Fußgängertor. Die Rückseite der Villa zeigt Anzeichen von Verfall aufgrund fehlender Wartung, wie dem Verfall der Balkonstützen und Feuchtigkeit, die den Putz ruiniert hat. Camprena ist ein Ortsteil der Gemeinde Bibbiena in der Provinz Arezzo, im Herzen des Casentino gelegen. Diese Gegend zeichnet sich durch hügelige und flussige Landschaften aus, die von der Natur des Nationalparks Casentino-Wälder, Monte Falterona und Campigna dominiert werden. Das Casentino-Tal ist ein touristisch interessantes Gebiet, bekannt für seine Wanderwege, die Vielfalt seiner Flora und Fauna sowie seine Handwerkstraditionen. Der Immobilienkomplex bietet ein hohes Entwicklungspotenzial: Er kann in eine edle Residenz, eine Beherbergungsstruktur oder ein multifunktionales Gebäude umgewandelt werden. Die äußeren Maßnahmen zielen auf eine konservierende Restaurierung der Villa ab, um den Verfall zu beheben und historische Elemente wiederherzustellen. Im Inneren können die Räume modernisiert werden, wobei edle Details wie Holzdecken, Kamine und das Badezimmer mit Mosaikfliesen erhalten bleiben. Die Nebengebäude, insbesondere das ehemalige Trocknungshaus, bieten die Möglichkeit, in ein Gästehaus, ein Büro oder einen Freizeitraum umgewandelt zu werden.
Das Innere der Villa erstreckt sich über vier Ebenen, die durch eine große interne Steintreppe verbunden sind. Im Erdgeschoss befinden sich Servicebereiche, Lagerräume und ein alter Weinkeller, auf den ersten und zweiten Etagen befinden sich die Küche, Schlafzimmer und Bäder, während die vierte Ebene Dachböden und einen Turm charakterisiert, von dem aus der Blick über die umliegenden Landschaften und Hügel reicht.
Das Anwesen bewahrt einige edle Elemente wie Kamine in einigen Zimmern, eine Decke mit Holzdecken und ein Bad mit originalen Mosaikfliesen aus den frühen 1900er Jahren. Die großen Fenster im Treppenhaus, einige mit farbigen Glasfenstern, garantieren eine gute Beleuchtung. Neben der Villa befindet sich ein ehemaliges Trocknungshaus aus Ziegelsteinen und roten Ziegeln, das zur Straße hin gelegen ist. Die Villa vereint Elemente des frühen 20. Jahrhunderts mit Renaissance-Anspielungen, wie Ecksteinverkleidungen und einen großen Altan. Sie ist von einem Zaun umgeben, der zur Straße hin aus Stein und Eisen besteht, während auf der Rückseite und zum Fluss hin ein einfacher Metallzaun steht. Der Haupteingang, gekennzeichnet durch ein zweiflügeliges Eisentor, das von zwei quadratischen Steinsäulen getragen wird, führt zu einem Garten, der die Villa auf drei Seiten umgibt. Es gibt auch ein kleineres Fußgängertor. Die Rückseite der Villa zeigt Anzeichen von Verfall aufgrund fehlender Wartung, wie dem Verfall der Balkonstützen und Feuchtigkeit, die den Putz ruiniert hat. Camprena ist ein Ortsteil der Gemeinde Bibbiena in der Provinz Arezzo, im Herzen des Casentino gelegen. Diese Gegend zeichnet sich durch hügelige und flussige Landschaften aus, die von der Natur des Nationalparks Casentino-Wälder, Monte Falterona und Campigna dominiert werden. Das Casentino-Tal ist ein touristisch interessantes Gebiet, bekannt für seine Wanderwege, die Vielfalt seiner Flora und Fauna sowie seine Handwerkstraditionen. Der Immobilienkomplex bietet ein hohes Entwicklungspotenzial: Er kann in eine edle Residenz, eine Beherbergungsstruktur oder ein multifunktionales Gebäude umgewandelt werden. Die äußeren Maßnahmen zielen auf eine konservierende Restaurierung der Villa ab, um den Verfall zu beheben und historische Elemente wiederherzustellen. Im Inneren können die Räume modernisiert werden, wobei edle Details wie Holzdecken, Kamine und das Badezimmer mit Mosaikfliesen erhalten bleiben. Die Nebengebäude, insbesondere das ehemalige Trocknungshaus, bieten die Möglichkeit, in ein Gästehaus, ein Büro oder einen Freizeitraum umgewandelt zu werden.
出售前 Villa Pallini 庄园,包括宽敞的花园和各种附属建筑。别墅内部分布在四层,由宽敞的内部石头楼梯连接。一楼设有服务设施、储藏室和一个古老的葡萄酒窖,一楼和二楼有厨房、卧室和浴室,而第四层有阁楼和一座塔楼,从那里可以眺望周围的乡村和山丘。该物业保留了一些珍贵元素,如一些房间内的壁炉、木制方格吊顶和一间带有20世纪初原始镶嵌陶瓷的浴室。楼梯间的宽窗户,一些带有彩色玻璃窗,确保了良好的采光。别墅旁边有一座红砖砌和砖砌的旧晒房面向街道。别墅融合了20世纪初元素和文艺复兴风格,如拐角石材凹凸和宽敞的凉棚。它被环绕着一道围墙,面朝街道处是石头和铁制的,而后院和河边则是简单的金属网。主要入口由一个两翼铁门和两个方形石柱支撑的门闩构成,通往环绕别墅三面的花园。也有一个较小的步行大门。别墅的后部显示出由于缺乏维护而产生的陨落痕迹,比如阳台柱子的腐烂和湿气损坏了灰泥。Camprena 位于比比耶纳市的一个分支,位于阿雷佐省,卡森蒂诺的中心地带。这个地区以丘陵和河谷景观为特征,主导着卡森蒂诺森林国家公园、法尔泰罗纳山和坎皮尼亚的自然。卡森蒂诺山谷是一个旅游景点,以其徒步旅行线路、丰富的植物和动物以及传统手工艺而闻名。该房地产具有较高的开发潜力:可以改建为高档住宅、接待设施或多功能综合体。外部干预旨在修复和恢复别墅的历史元素,内部空间可以现代化,保留尊贵细节如方格吊顶、壁炉和镶嵌陶瓷浴室。附属建筑,尤其是旧晒房,可以改建为客房、工作室或娱乐空间。
На продажу предлагается недвижимость, состоящая из бывшей виллы Паллини с большим садом и различными пристройками. Внутри виллы, которая располагается на четырех уровнях, есть большая каменная лестница, соединяющая все этажи. На первом этаже находятся служебные помещения, склады и старое винодельческое сооружение, а на втором и третьем этажах - кухня, спальни и ванные комнаты. Четвертый уровень представлен чердаком и башенкой, откуда открывается вид на окрестные поля и холмы. Здание сохранило несколько ценных элементов, таких как камины в некоторых помещениях, потолок из деревянных панелей и ванная комната с оригинальной мозаичной керамикой начала XX века. Большие окна во внутренних помещениях, некоторые из которых с цветными витражами, обеспечивают хорошее освещение. Рядом с виллой находится бывшая кирпичная сушильня, выходящая на улицу. Вилла сочетает элементы начала XX века с ренессансными оттенками, такими как угловые каменные бугры и широкий балкон. Вокруг виллы есть забор из камня и железа вдоль улицы, а сзади и в сторону реки - простое металлическое ограждение. Главный вход, с двустворчатыми железными воротами, поддерживаемыми двумя квадратными каменными столбами, ведет в трехсторонний сад, окружающий виллу. На задней стороне виллы видны признаки ухудшения из-за отсутствия обслуживания, такие как разрушившиеся столбы балконов и влага, которая испортила штукатурку. Кампрена - это поселок в муниципалитете Биббьена, расположенный в провинции Ареццо, в самом сердце Казентино. Эта местность характеризуется холмистым и речным ландшафтом, который доминируется природой Национального парка лесов Казентини, горы Фальтерона и Кампиньи. Казентининская долина - это туристический регион, известный своими пешеходными маршрутами, богатством флоры и фауны, а также ремесленной традицией. Эта недвижимость имеет высокий развивающий потенциал: ее можно преобразить в роскошное жилье, гостиничный комплекс или многофункциональное сооружение. Внешние работы направлены на консервацию виллы, восстанавливая исторические элементы. Внутреннее пространство можно модернизировать, сохраняя ценные детали, такие как потолок из деревянных панелей, камины и мозаичные плитки в ванной комнате. Пристройки, особенно бывшая сушильня, могут быть преобразованы в гостевой дом, студию или рекреационное пространство.
- Data annuncio
- 05/09/2025
- Tipologia
- Palazzo storico, Stabile
- Diritto
- Piena proprietà
- Quota
- 1/1
- Condizioni dell’immobile
- Da ristrutturare
- Stato occupazione
- Libero
- Balcone/Terrazzo
- Si
- Soffitta
- Si
- Giardino
- Si
- Garage
- Si
- Terrazza
- Si
- Classificazione energetica
- In fase di richiesta
Tipo di catasto Fabbricati |
Categoria A8 Abitazioni in ville |
Rendita € 3.145,22 |
Tipo di catasto Fabbricati |
Categoria A4 Abitazioni di tipo popolare |
Rendita € 260,29 |
Tipo di catasto Fabbricati |
Categoria C6 Stalle, scuderie, rimesse, autorimesse (senza fine di lucro) |
Rendita € 77,33 |
Tipo di catasto Fabbricati |
Categoria C2 Magazzini e locali di deposito |
Rendita € 29,75 |
Tipo di catasto Fabbricati |
Categoria C2 Magazzini e locali di deposito |
Rendita € 322,27 |
Tipo di catasto Terreni |
Qualità Pascolo cespugliato |
Reddito agrario € 0,10 |
Tipo di catasto Terreni |
Qualità Pascolo cespugliato |
Reddito agrario € 0,01 |
Tipo di catasto Terreni |
Qualità Seminativo |
Reddito agrario € 27,53 |
Tipo di catasto Terreni |
Qualità Seminativo |
Reddito agrario € 0,58 |
Tipo di catasto Terreni |
Qualità Seminativo |
Reddito agrario € 0,47 |
Mappa e punti di interesse
Consulta la mappa e scopri cosa c’è nel raggio di 600 metri: potresti trovare i servizi che rendono questa proprietà perfetta per te
Cliccando sulle categorie della legenda puoi aggiungere o rimuovere i punti di interesse, per una consultazione più semplice e personalizzata