Codice
651
Posto moto
Posto moto
Via Sardi 57126 Livorno (LI)
-
3Superficie commerciale
-
ptPiano
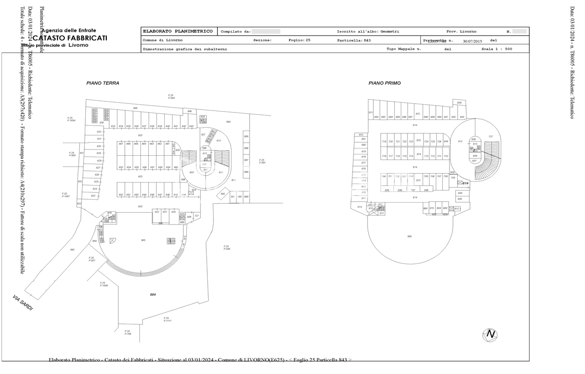
Posto moto al piano terra di 3 metri quadri.
L’aggiudicatario sarà tenuto al pagamento degli oneri di urbanizzazione in favore del Comune di Livorno da quest’ultimo stimati in euro 224,15 (si consiglia tuttavia di acquisire un conteggio ufficiale presso l’Ente competente).
L’aggiudicatario sarà tenuto al pagamento degli oneri di urbanizzazione in favore del Comune di Livorno da quest’ultimo stimati in euro 224,15 (si consiglia tuttavia di acquisire un conteggio ufficiale presso l’Ente competente).
Servitù: La viabilità di collegamento dell’immobile alla pubblica via è gravata da servitù di passo in favore di unità immobiliari private confinanti.
Motorcycle parking spot on the ground floor of 3 square meters.
The winning bidder will be required to pay urbanization charges to the Municipality of Livorno estimated at 224.15 euros (however, it is recommended to obtain an official calculation from the competent Authority).
Easement: The connection road of the property to the public road is burdened by a right of way in favor of neighboring private properties.
The winning bidder will be required to pay urbanization charges to the Municipality of Livorno estimated at 224.15 euros (however, it is recommended to obtain an official calculation from the competent Authority).
Easement: The connection road of the property to the public road is burdened by a right of way in favor of neighboring private properties.
- Data annuncio
- 27/05/2024
- Tipologia
- Posto moto
- Diritto
- Piena proprietà
- Quota
- 1/1
- Stato occupazione
- Libero
- Classificazione energetica
- Esente
Tipo di catasto Fabbricati |
Categoria C6 Stalle, scuderie, rimesse, autorimesse (senza fine di lucro) |
Rendita - |
Foglio 25 |
Particella 843 |
Sub 915 |
Mappa e punti di interesse
Consulta la mappa e scopri cosa c’è nel raggio di 600 metri: potresti trovare i servizi che rendono questa proprietà perfetta per te
Cliccando sulle categorie della legenda puoi aggiungere o rimuovere i punti di interesse, per una consultazione più semplice e personalizzata