Codice
424
Ufficio
Ufficio
Via Spagna 57017 Collesalvetti (LI)
Compendio composto da uffici, laboratorio e 10 posti auto.
Documentazione in fase di analisi.
APE sub. 619:
Indice prestazione energetica: 116.94 kWh/mq anno
Indice prestazione energetica rinnovabile: 1.46 kWh/mq anno
Codice identificativo SIERT: 0000078123/2019
APE sub. 624:
Indice prestazione energetica: 163.31 kWh/mq anno
Indice prestazione energetica rinnovabile: 169.61 kWh/mq anno
Codice identificativo SIERT: 0000078126/2019
APE sub. 625:
Indice prestazione energetica: 147.89 kWh/mq anno
Indice prestazione energetica rinnovabile: 163.27 kWh/mq anno
Codice identificativo SIERT: 0000078131/2019
APE sub. 626:
Indice prestazione energetica: 151.65 kWh/mq anno
Indice prestazione energetica rinnovabile: 163.04 kWh/mq anno
Codice identificativo SIERT: 0000078138/2019
Documentazione in fase di analisi.
Compendium consisting of offices, a laboratory, and 10 parking spaces.
Documentation is currently being analyzed.
Documentation is currently being analyzed.
- Data annuncio
- 27/05/2024
- Tipologia
- Ufficio
- Diritto
- Piena proprietà
- Quota
- 1/1
- Classificazione energetica
- In fase di richiesta
Tipo di catasto Fabbricati |
Categoria C3 Laboratori per arti e mestieri |
Rendita € 713,95 |
Foglio 30 |
Particella 112 |
Sub 619 |
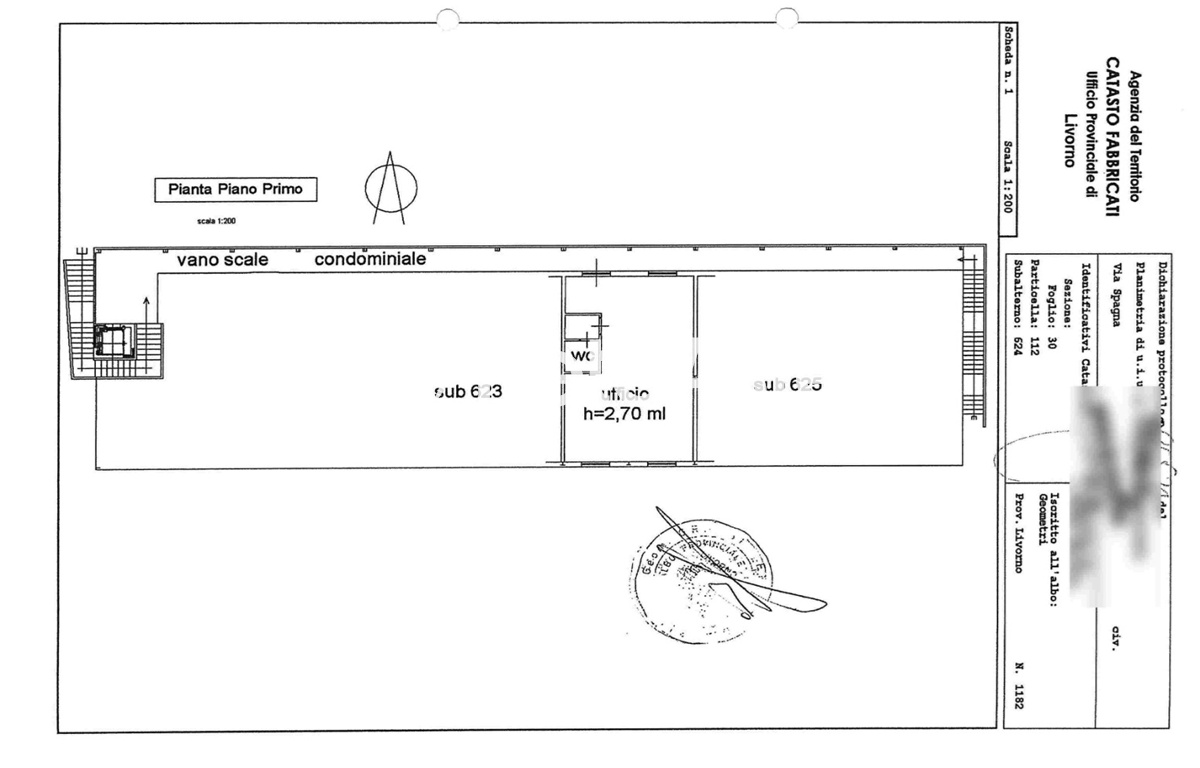
Tipo di catasto Fabbricati |
Categoria A10 Uffici e studi privati |
Rendita € 1.292,43 |
Foglio 30 |
Particella 112 |
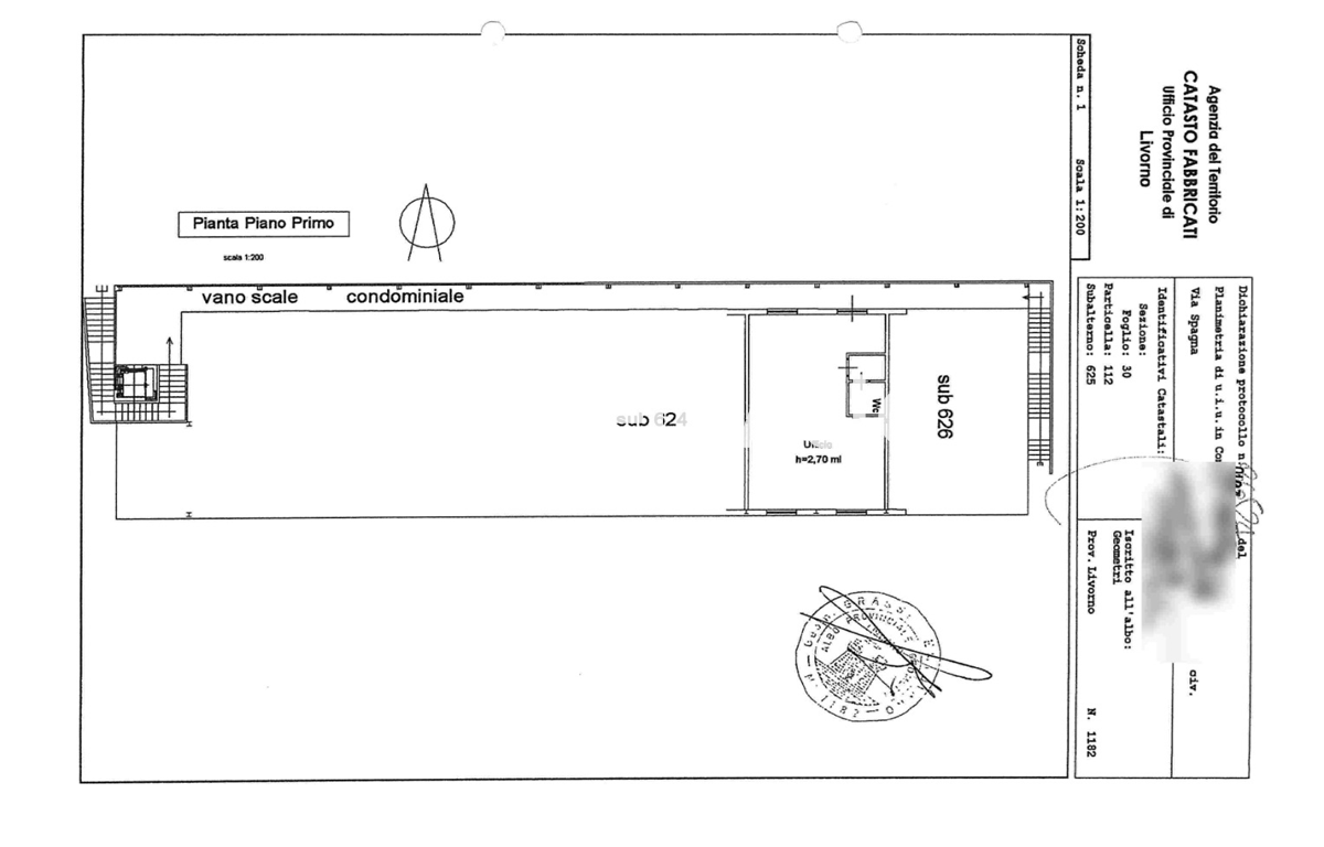
Sub 624 |
Tipo di catasto Fabbricati |
Categoria A10 Uffici e studi privati |
Rendita € 1.292,43 |
Foglio 30 |
Particella 112 |
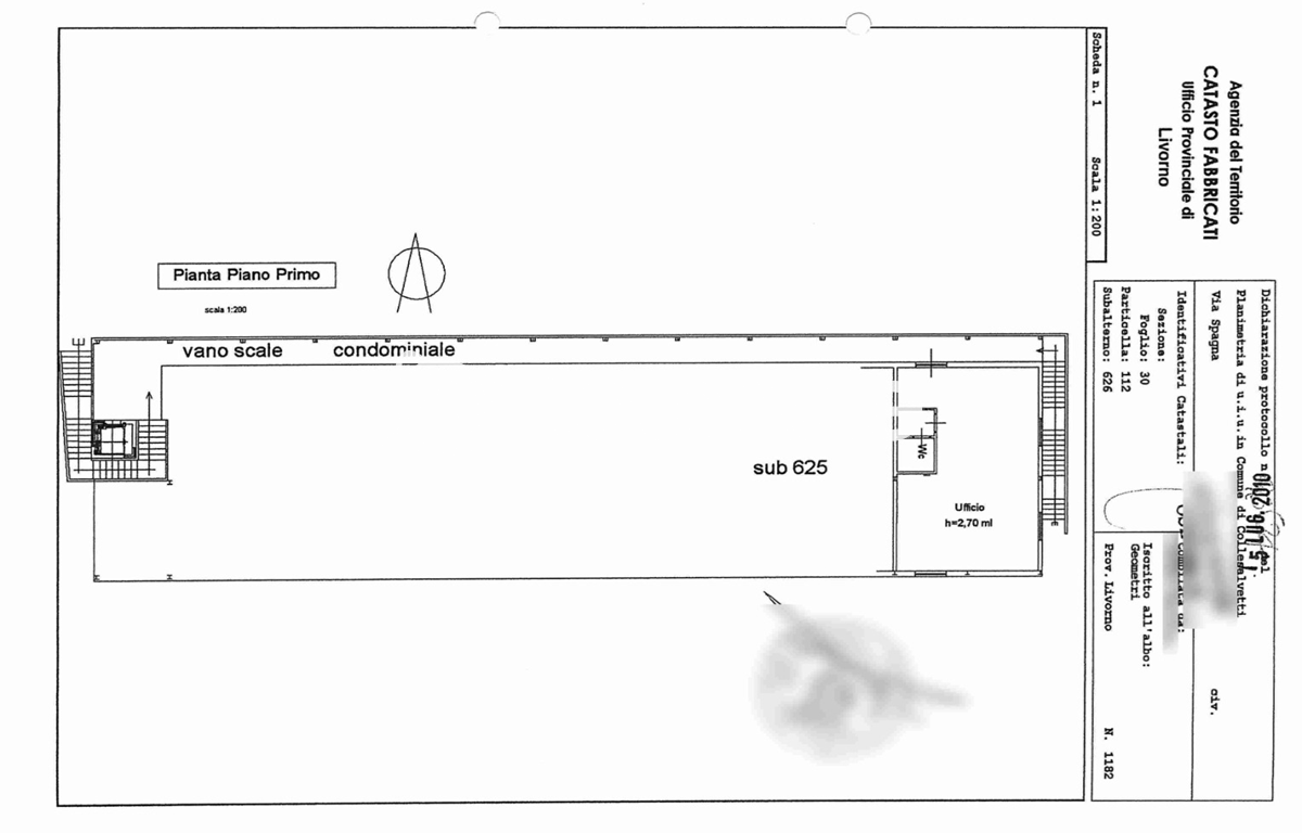
Sub 625 |
Tipo di catasto Fabbricati |
Categoria A10 Uffici e studi privati |
Rendita € 1.292,43 |
Foglio 30 |
Particella 112 |
Sub 626 |
Tipo di catasto Fabbricati |
Categoria C6 Stalle, scuderie, rimesse, autorimesse (senza fine di lucro) |
Rendita € 13,07 |
Foglio 30 |
Particella 112 |
Sub 608 |
Tipo di catasto Fabbricati |
Categoria C6 Stalle, scuderie, rimesse, autorimesse (senza fine di lucro) |
Rendita € 13,07 |
Foglio 30 |
Particella 112 |
Sub 609 |
Tipo di catasto Fabbricati |
Categoria C6 Stalle, scuderie, rimesse, autorimesse (senza fine di lucro) |
Rendita € 13,07 |
Foglio 30 |
Particella 112 |
Sub 610 |
Tipo di catasto Fabbricati |
Categoria C6 Stalle, scuderie, rimesse, autorimesse (senza fine di lucro) |
Rendita € 13,07 |
Foglio 30 |
Particella 112 |
Sub 611 |
Tipo di catasto Fabbricati |
Categoria C6 Stalle, scuderie, rimesse, autorimesse (senza fine di lucro) |
Rendita € 13,07 |
Foglio 30 |
Particella 112 |
Sub 612 |
Tipo di catasto Fabbricati |
Categoria C6 Stalle, scuderie, rimesse, autorimesse (senza fine di lucro) |
Rendita € 13,07 |
Foglio 30 |
Particella 112 |
Sub 613 |
Tipo di catasto Fabbricati |
Categoria C6 Stalle, scuderie, rimesse, autorimesse (senza fine di lucro) |
Rendita € 13,07 |
Foglio 30 |
Particella 112 |
Sub 614 |
Tipo di catasto Fabbricati |
Categoria C6 Stalle, scuderie, rimesse, autorimesse (senza fine di lucro) |
Rendita € 13,07 |
Foglio 30 |
Particella 112 |
Sub 615 |
Tipo di catasto Fabbricati |
Categoria C6 Stalle, scuderie, rimesse, autorimesse (senza fine di lucro) |
Rendita € 13,07 |
Foglio 30 |
Particella 112 |
Sub 616 |
Tipo di catasto Fabbricati |
Categoria C6 Stalle, scuderie, rimesse, autorimesse (senza fine di lucro) |
Rendita € 13,07 |
Foglio 30 |
Particella 112 |
Sub 607 |