Codice
428
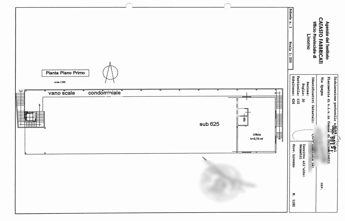
Ufficio
Ufficio
Via Spagna 57017 Collesalvetti (LI)
Ufficio con 2 posti auto di 12 metri quadri ciascuno.
APE sub. 626:
Indice prestazione energetica: 151.65 kWh/mq anno
Indice prestazione energetica rinnovabile: 163.04 kWh/mq anno
Codice identificativo SIERT: 0000078138/2019
Documentazione in fase di analisi.
APE sub. 626:
Indice prestazione energetica: 151.65 kWh/mq anno
Indice prestazione energetica rinnovabile: 163.04 kWh/mq anno
Codice identificativo SIERT: 0000078138/2019
Documentazione in fase di analisi.
Office with 2 parking spaces of 12 square meters each.
Documentation is currently being analyzed.
Documentation is currently being analyzed.
- Data annuncio
- 27/05/2024
- Tipologia
- Ufficio
- Diritto
- Piena proprietà
- Quota
- 1/1
- Classificazione energetica
- F
- Scadenza
- 24/09/2029
Tipo di catasto Fabbricati |
Categoria A10 Uffici e studi privati |
Rendita € 1.292,43 |
Foglio 30 |
Particella 112 |
Sub 626 |
Tipo di catasto Fabbricati |
Categoria C6 Stalle, scuderie, rimesse, autorimesse (senza fine di lucro) |
Rendita € 13,07 |
Foglio 30 |
Particella 112 |
Sub 615 |
Tipo di catasto Fabbricati |
Categoria C6 Stalle, scuderie, rimesse, autorimesse (senza fine di lucro) |
Rendita € 13,07 |
Foglio 30 |
Particella 112 |
Sub 616 |